1/18 Wetherby Road, Doncaster VIC 3108
Property Details
4
2
Townhouse
Description
Property Details: • Type: Townhouse
• Bedrooms: 4 • Bathrooms: 2
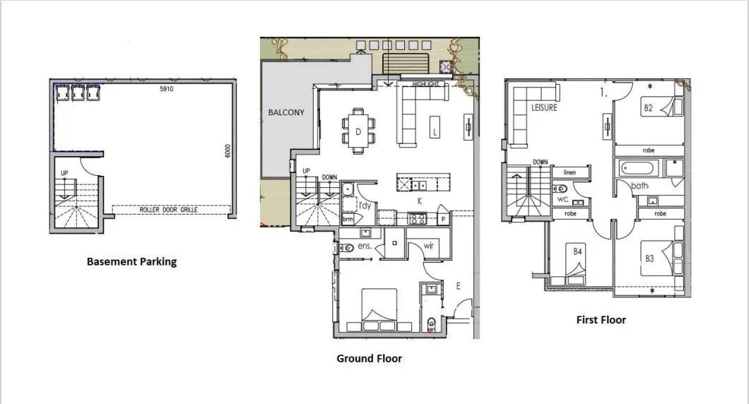
Description: Built in 2022 and situated in a great location near Westfield Doncaster, Eastern freeway, local schools and parkland nearby. • 4 good sized bedrooms • Luxurious kitchen with stone bench tops, gas cooking and dishwasher • Downstairs master bedroom with ensuite and walk in robe • Family bathroom with separate bath and shower • Split system air conditioners • Large upstairs open living/study • Powder room • Separate laundry • Luxury carpets • Polished floorboards • Gorgeous timber staircase • Low maintenance courtyard • Secure basement parking with individual double auto roller doors • Small block of only 4 townhouses. • Call for a private inspection
Location
Address
1/18 Wetherby Road, Doncaster VIC 3108
City
Doncaster
Features and Finishes
None
Legal Notice
Our comprehensive database is populated by our meticulous research and analysis of public data. MirrorRealEstate strives for accuracy and we make every effort to verify the information. However, MirrorRealEstate is not liable for the use or misuse of the site's information. The information displayed on MirrorRealEstate.com is for reference only.