1-3, 37 East Street, Hectorville SA 5073
Property Details
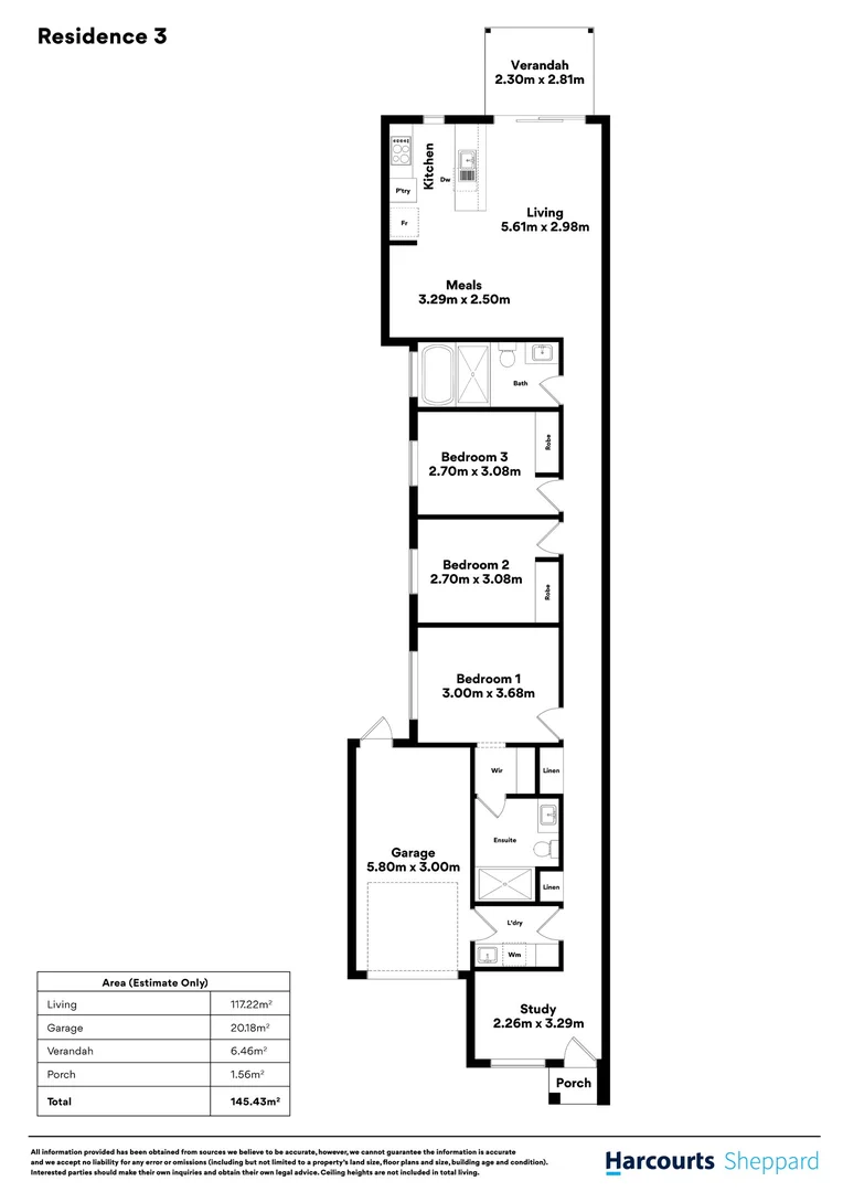
3
2
House
Description
Property Details: • Type: House
• Bedrooms: 3 • Bathrooms: 2
Description: These stunning single-story Torrens-titled homes will be expertly crafted in a peaceful, family-oriented neighbourhood, combining modern design with practical living to create the perfect setting for your next chapter. Featuring a single garage and generous street frontage, the thoughtfully designed floor plan offers three spacious bedrooms. The master suite includes a walk-in robe and private ensuite, providing a serene retreat, while bedrooms two and three are fitted with built-in robes for convenience. The family bathroom showcases a luxurious freestanding bathtub - ideal for relaxing after a long day. At the heart of the home is the open-plan kitchen, meals, and living area, designed to bring family and friends together. Modern finishes and a seamless flow make this space perfect for entertaining or everyday living. The single garage provides secure parking with direct access into the home, and the spacious backyard offers plenty of room for gatherings, play, or quiet evenings. Key Features: - 2.7m high ceilings enhancing space and light - Floor-to-ceiling tiles in bathrooms and ensuite - Ducted Daikin reverse-cycle air-conditioning for year-round comfort - Premium kitchen appliances, including gas cooktop - 2400mm high doors throughout - Open-plan kitchen, meals, and living area ideal for entertaining - Master suite with walk-in robe and private ensuite - Bedrooms 2 and 3 with built-in robes - Generously sized main bathroom with freestanding bathtub - Separate laundry with external access - Direct access from garage into the home - Inviting portico and welcoming hallway entry - Laminate flooring in hallways and living areas; carpet in bedrooms - Secure single garage with automatic panel-lift door - Side courtyard for outdoor enjoyment First-home buyers may be eligible for the First Home Owner Grant or stamp duty relief administered by RevenueSA, making now the - perfect time to secure your dream home. Located in the highly sought-after suburb of Hectorville, this house and land package provides exceptional convenience, with schools, shopping, and public transport all close by, and the Adelaide CBD just a short drive away. * Rental Assesment $720 - $740 per week * Upgrade options available upon request * 2 different House and Land package options available, contact Shane Boon today on 0421 674 905 to learn more. * Site location inspections available at request - Res 3 $919k - Res 1 $929k All information provided is from sources we believe to be accurate. We cannot guarantee its accuracy and accept no liability for any errors or omissions, including property land size, floor plans, or building age/condition. Interested parties are advised to conduct their own inquiries and seek independent legal and financial advice. RLA 324145
Location
Address
1-3, 37 East Street, Hectorville SA 5073
City
Hectorville
Features and Finishes
None
Legal Notice
Our comprehensive database is populated by our meticulous research and analysis of public data. MirrorRealEstate strives for accuracy and we make every effort to verify the information. However, MirrorRealEstate is not liable for the use or misuse of the site's information. The information displayed on MirrorRealEstate.com is for reference only.