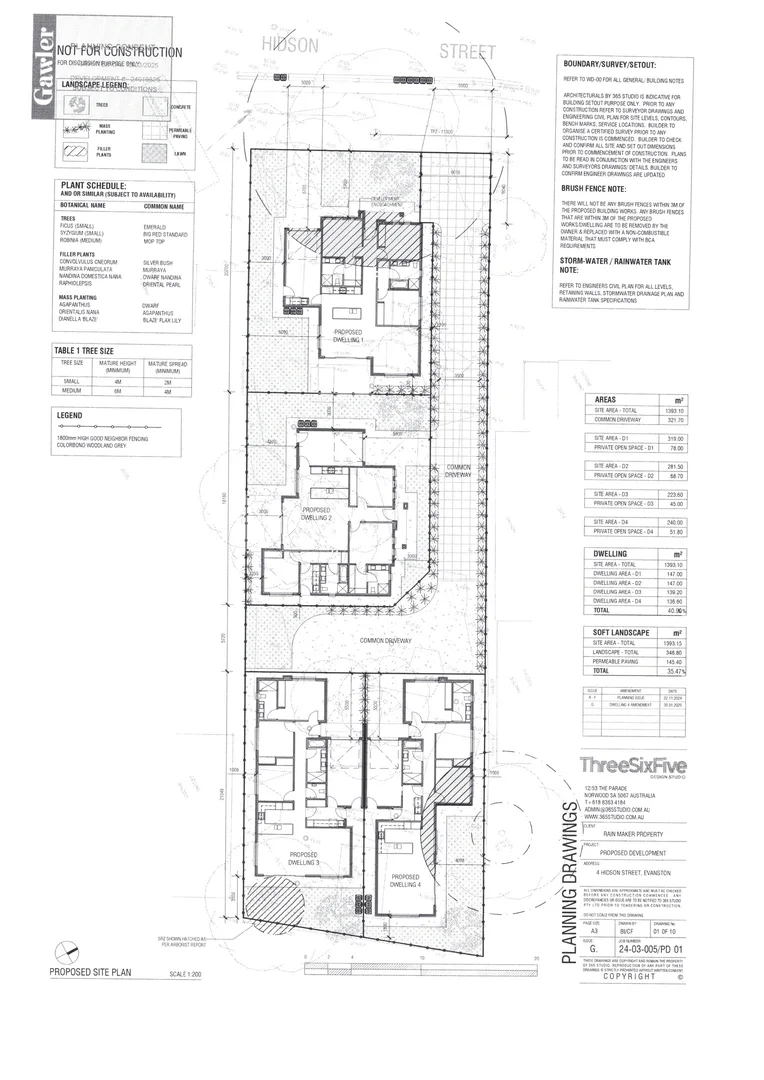
1-4/4 Hidson Street, Evanston SA 5116
Property Details
3
2
House
Description
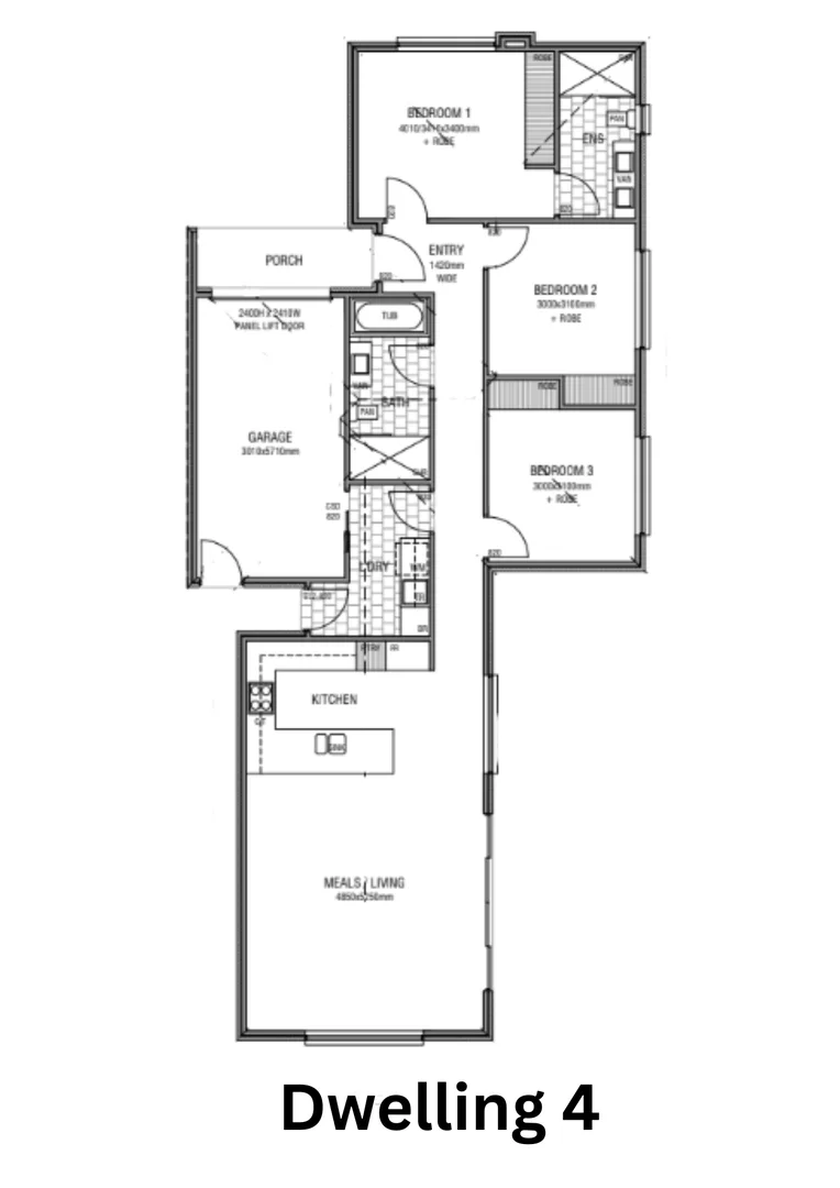
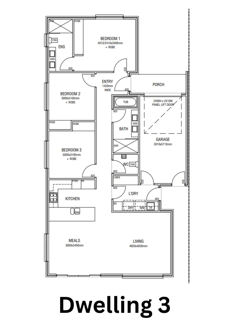
Property Details: • Type: House
• Bedrooms: 3 • Bathrooms: 2
Description: 2 SOLD - ONLY 2 REMAINING. No need to wait, these are ready to build, NOW! An incredible opportunity to get into the market and benefit from the many State & Federal Government First Home Buyer/Builder Incentives. These yet to be constructed 3 bed 2 bathroom single garage homes must be purchased as a House & Land package as these designs have been formally approved by The City of Gawler council. The builder is Torrens Constructions (an independent builder). There are 4 to choose from so be quick to secure your home of choice. These are a Turn Key solution, meaning everything has been completed and included, excluding curtains. Therefore no hidden last minute costs. Please request a copy of the digital Selections Brochure. Fixed Price Contracts : Dwelling 1 - $669,000 - $689,000 (which has street frontage & direct off street garage access) Dwelling 2 - $655,000 - $675,000 UNDER CONTRACT Dwelling 3 and 4 - $629,000 - $649,000 each Construction is expected to begin as soon as all 4 have been sold, at which time the land will need to be settled separately.
Location
Address
1-4/4 Hidson Street, Evanston SA 5116
City
Evanston
Features and Finishes
None
Legal Notice
Our comprehensive database is populated by our meticulous research and analysis of public data. MirrorRealEstate strives for accuracy and we make every effort to verify the information. However, MirrorRealEstate is not liable for the use or misuse of the site's information. The information displayed on MirrorRealEstate.com is for reference only.