1/71A Tanner St, Richmond VIC 3121
Property Details
2
2
Apartment / Unit / Flat
Description
Property Details: • Type: Apartment / Unit / Flat
• Bedrooms: 2 • Bathrooms: 2
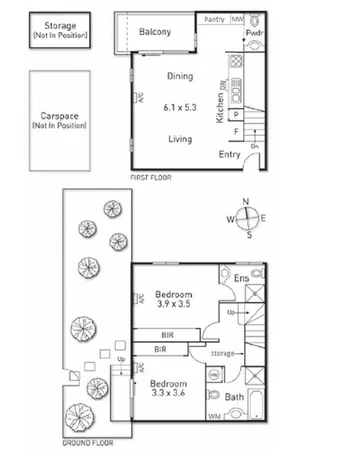
Description: ** TO REGISTER FOR AN INSPECTION, SIMPLY CLICK ON BOOK INSPECTION, EMAIL AGENT or GET IN TOUCH ** This boutique and secure townhouse-style apartment is perfect for professionals and small families alike with its spacious two-level floorplan. Offering: - 2 generous bedrooms both with built in robes - Ensuite to master bedroom - Generous north facing open plan living/dining - Balcony off living room with city views - Large low maintenance courtyard garden with street access - Fully equipped entertainers' kitchen with dishwasher the induction cooktop - Main bathroom with bathtub and separate shower and separate toilet. - Private space for laundry facilities accommodating both wash and dryer. - Large storage area under stairs. - Powder room - Secure undercover off street parking for one with storage cabinet - Access to rooftop deck with magnificent 360-degree views Convenience and lifestyle reign supreme in a locale like Richmond, with the Swan Street, Church Street and Bridge Road precincts all within walking distance, be spoilt for choice when it comes to dining, shopping and nightlife. While all the major sporting and concert arenas are at your doorstep as well as public transport, parklands, hospitals and great schooling, a very rare opportunity not to be missed! Please ensure you REGISTER for inspections. Otherwise, you will not be notified of any changes to advertised inspection times. ADVERTISED INSPECTION TIMES displayed on this page are subject to cancellation or change. The first month's rent and bond are to be paid in advance by direct credit or bank cheque/s. Cash, personal or company cheques will not be accepted as payment. All future rental payments are monthly, in advance & via direct debit. Disclaimer: This advertisement has been prepared with the best endeavours to ensure the information contained in this advertisement is true and correct. We accept no responsibility and disclaim all liability in respect to any errors, omissions, inaccuracies or exclusions in this material. Prospective Renters are encouraged to make their own enquiries to verify the information contained in this advertising material is true and correct.
Location
Address
1/71A Tanner St, Richmond VIC 3121
City
Richmond
Features and Finishes
None
Legal Notice
Our comprehensive database is populated by our meticulous research and analysis of public data. MirrorRealEstate strives for accuracy and we make every effort to verify the information. However, MirrorRealEstate is not liable for the use or misuse of the site's information. The information displayed on MirrorRealEstate.com is for reference only.