1 Bed Flat, Caedmon Road, N7, N1 7GU
Property Details
1
1
Flat
Description
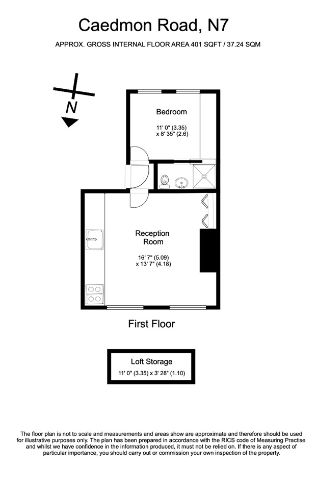
Newly refurbished home set within a traditional Georgian building.The pictures speak for themselves, but let's start with the living room. This open plan room is really spacious and super-sleek. There is a Heals bespoke sofa, Samsung 55 inch 4K TV and a fully integrated kitchen along with a dining area. Traditional wood floors and brand new huge double glazed wooden sash windows help with the unique look and feel. The bedroom has an ensuite with a very unique stylish interior along with plenty of storage space. Can come fully furnished, including TVs. Full Details;The Property● First floor flat within a Georgian building that has been completely refurbished to a high standard● New central heating system with high quality Valliant boiler and modern● New double glazed timber sliding sash windows throughout high efficiency radiators● Fully rewired with new fittings throughout● Restored wooden floors with acoustic underlay Entrance● Freshly decorated common parts with new carpet● Door entry systemKitchen● Solid Oak and Richlite laminated doors. Richlite is a hard wearing composite Oak and Richlite kitchen. This Kitchen is crafted from oak units with material with a soft leathery finish● Samsung C61R2AEE black glass electric hob● Samsung NV70H5587CB black glass single oven● Kitchen Appliances:Samsung C61R2AEE black glass electric hobSamsung NV70H5587CB black glass single ovenFranke FTC601BKGL 60cm Black Telescopic Cooker Hood Extractor FanZanussi ZWT71401WA washer dryerENKI Ultra Modern Square Designer Versare Style Kitchen Sink Mixer Tap Black VENICEZanussi ZBB28442SA_SI fridge freezerLiving/Dining● Samsung The Frame 55" Art Mode Ultra HD TV ● Heal’s 40 Winks Sofa Bed - Antique Brown● Nest Thermostat + fire alarms● Ottoman foot stool● Conmoto Table (220cm) and Benches● Coordinating standard lamp with cut glass shade● Cut glass pendant lights Master Bedroom● Made Bed frame + Caspar mattress● Full height oak wardrobes with bespoke Valchromat doors (designed and installed by White Beam Joinery). Wardrobes incorporate 32” TV with integrated power and aerial connections.● “Loft” storage space with co-ordinating bespoke Valchromat bi-fold doors providing easy access to storage.● Panasonic 32 inch TV ● Designer brass wall lights and coordinating spotlights ● Fading World Generation 8634 Raspberry Cream Rug by Louis De Poortere● White wooden venetian blinds
--- Property Details --- Type: Flat Bedrooms: 1 Bathrooms: 1 Rent: £2,000 per month Deposit: £2,000 Furnished: Furnished EPC Rating: C Available From: 08 May, 2026 Minimum Tenancy: 12 Months Bills Included: Broadband View Offers Postcode: N1 7GU Listed By: OpenRent Landlord
Location
Address
1 Bed Flat, Caedmon Road, N7, N1 7GU
City
N1 7GU
Features and Finishes
Furnished, EPC: C, Available: 08 May, 2026, Min tenancy: 12 Months, Bills: Broadband View Offers
Legal Notice
Our comprehensive database is populated by our meticulous research and analysis of public data. MirrorRealEstate strives for accuracy and we make every effort to verify the information. However, MirrorRealEstate is not liable for the use or misuse of the site's information. The information displayed on MirrorRealEstate.com is for reference only.