1 Bed Flat, Hamilton Road, BN1, N1 7GU
Property Details
1
1
Flat
Description
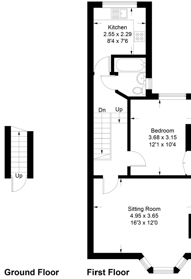
This freshly decorated property comprises of a large period living room which is bright and spacious, with ample room for a dining and study area. There is an abundance of natural light which is helped by fantastic ceiling height.A modern kitchen, with appliances, is situated to the rear, with stunning views over Brighton. A good sized double bedroom with a built in wardrobe and plenty of space for additional furniture also has great views over the city.Set in one of the most sought after areas in Brighton, this first floor apartment in the seven dials area is perfect for young professionals. Hamilton Road is based on the edge of one of the most popular parts of Brighton with its cafes, bars and restaurants and a short walk to the town centre and Brighton train station, with direct trains to London.Parking permits can be purchased from Brighton Council for on street parking. Affordability criteria: Please do not book a viewing unless you can show you earn at least £37,500 a year (combined).GROUND FLOOR (stairs leading to accommodation) FIRST FLOOR ENTRANCE HALL SITTING ROOM 16' 3" x 12' 0" (4.95m x 3.66m) BEDROOM 12' 1" x 10' 4" (3.68m x 3.15m) KITCHEN 8' 4" x 7' 6" (2.54m x 2.29m) FAMILY BATHROOM
--- Property Details --- Type: Flat Bedrooms: 1 Bathrooms: 1 Rent: £1,250 per month Deposit: £1,442.3 Furnished: Unfurnished EPC Rating: C Available From: Today Minimum Tenancy: 12 Months Bills Included: Broadband View Offers Postcode: N1 7GU Listed By: OpenRent Landlord
Location
Address
1 Bed Flat, Hamilton Road, BN1, N1 7GU
City
Cambridge
Features and Finishes
Unfurnished, EPC: C, Available: Today, Min tenancy: 12 Months, Bills: Broadband View Offers
Legal Notice
Our comprehensive database is populated by our meticulous research and analysis of public data. MirrorRealEstate strives for accuracy and we make every effort to verify the information. However, MirrorRealEstate is not liable for the use or misuse of the site's information. The information displayed on MirrorRealEstate.com is for reference only.