1 Bed Flat, Maida Vale, W9, N1 7GU
Property Details
1
1
Flat
Description
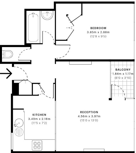
Located in the heart of Maida Vale, just next to the station, this warm and welcoming 7th-floor apartment offers a peaceful retreat in a central London setting. Perfectly suited for two adults or a professional couple, the flat is situated within a well-maintained 1980s ex-council building, benefiting from lift access (note: the lift serves even-numbered floors only) Living Area: A spacious room featuring a work desk and chair, a dining table for two, and an extendable double sofa bed (Sleeping area: 140cm x 200cm). Bedroom: A generous double bedroom including a double bed (140cm x 192cm) and ample storage with built-in wardrobes. Clean bedding is provided. Kitchen: Fully equipped with all necessary appliances, including a fridge, freezer, and a washer/dryer. Bathroom: A clean and functional bathroom with a separate toilet. The shower cabin is small but useful. A small private balcony is available.# Gas heating. · A short, scenic stroll to the famous canals of Little Venice. The property is surrounded by an excellent selection of local shops, artisan cafes, and restaurants.· Secure entrance with a door intercom system. · High-speed Wi-Fi included (suitable for standard professional use). · Essential amenities provided: Hairdryer, clean towels, and kitchen equipment. · This is a peaceful residential building. We operate a strict no-parties or large gatherings policy. No smoking. No pets.
--- Property Details --- Type: Flat Bedrooms: 1 Bathrooms: 1 Rent: £2,300 per month Deposit: £2,300 Furnished: Furnished EPC Rating: C Available From: 13 April, 2026 Minimum Tenancy: 1 Months Bills Included: Broadband View Offers Postcode: N1 7GU Listed By: OpenRent Landlord
Location
Address
1 Bed Flat, Maida Vale, W9, N1 7GU
City
N1 7GU
Features and Finishes
Furnished, EPC: C, Available: 13 April, 2026, Min tenancy: 1 Months, Bills: Broadband View Offers
Legal Notice
Our comprehensive database is populated by our meticulous research and analysis of public data. MirrorRealEstate strives for accuracy and we make every effort to verify the information. However, MirrorRealEstate is not liable for the use or misuse of the site's information. The information displayed on MirrorRealEstate.com is for reference only.