1 Bed Flat, Thorne Road, SW8, N1 7GU
Property Details
1
1
Flat
Description
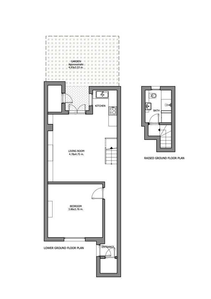
**All bills are included excluding electricity & internet**Welcome to this beautifully presented one-bedroom ground floor flat, nestled in the heart of SW8, minutes walk from Nine elms tube station. Perfect for professionals or couples seeking a stylish and well-connected London flat. The buzzing bars, cafés, and restaurants of Vauxhall and Oval are just a short stroll away, while excellent transport links via Nine Elms (Northern Line), Stockwell (Victoria and Northern Line), and Vauxhall (Victoria Line & National Rail) provide easy access to central and beyond. This recently refurnished property offers a blend of modern living with classic period charm. Set within an attractive terrace house, this well-proportioned flat offers generous living space and excellent storage throughout. The property features a large double bedroom with ample space for wardrobes and additional furnishings. A bright and spacious living room provides an ideal area to relax complete with several substantial built-in storage cupboards to keep the space organised and clutter-free. Big windows lead to a beautiful patio offering plenty of sunlight and perfect for the warmer months. The open-plan kitchen connects seamlessly to the living area, creating a modern and sociable layout suited to both everyday living and entertaining. A staircase with built-in storage adds further practicality. The flat benefits from a large bathroom with plenty of storage and a built in shower. Located within a charming Georgian terrace setting, this property combines character, space, and functionality — making it an excellent home for professionals who want to be well connected. In close walking distance is Thames path and newly developed Battersea Power Station. Available immediatelyTo check broadband and mobile phone coverage please visit Ofcom.
--- Property Details --- Type: Flat Bedrooms: 1 Bathrooms: 1 Rent: £2,200 per month Deposit: £2,200 Furnished: Furnished EPC Rating: C Available From: immediately Minimum Tenancy: 12 Months Bills Included: Broadband View Offers Postcode: N1 7GU Listed By: OpenRent Landlord
Location
Address
1 Bed Flat, Thorne Road, SW8, N1 7GU
City
Cambridge
Features and Finishes
Furnished, EPC: C, Available: immediately, Min tenancy: 12 Months, Bills: Broadband View Offers
Legal Notice
Our comprehensive database is populated by our meticulous research and analysis of public data. MirrorRealEstate strives for accuracy and we make every effort to verify the information. However, MirrorRealEstate is not liable for the use or misuse of the site's information. The information displayed on MirrorRealEstate.com is for reference only.