1 Bed Flat, Vernon Terrace, BN1, N1 7GU
Property Details
1
1
Flat
Description
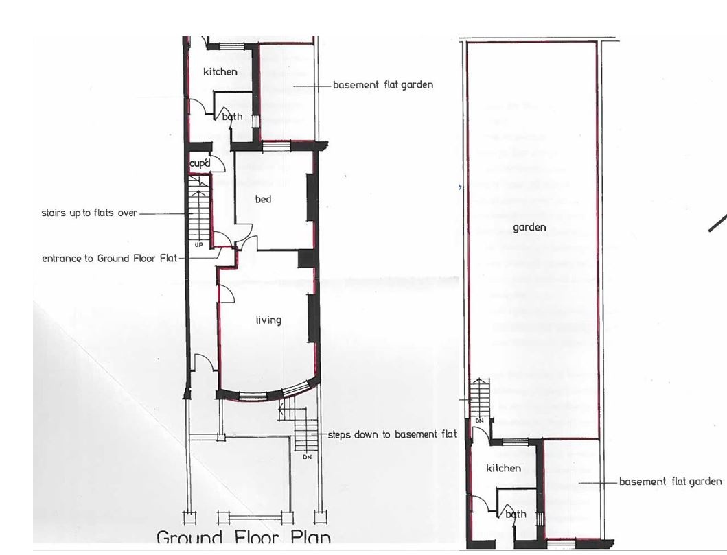
Vernon Terrace, is a raised ground floor flat overlooking a small courtyard garden with leafy Montpelier crescent opposite.The building is Grade II listed, built in 1851 and features high ceilings, cornicing & feature fireplace.The property is a short walk from the 7 dials shopping and restaurant area and is 2 bus stops or a short walk or 2 stops on a No7 bus route to Brighton Station. No7 goes direct to Sussex hospital on Eastern road.The internal floor area is 62m2. The private walled garden to the rear is of a similar dimension. See plan. The garden supports abundant wildlife including its own semi resident fox cub. The garden includes a wildlife pond.The property has recently been extensively updated to improve its energy efficiency. Its pre improvement 2017 EPC rating is D. Since then, in 2024 it had a new ultra energy efficient Vaillant eco fit boiler & a Zypho slim 50 shower waste heat recovery system & bathroom underfloor wool insulation installed. What now also fitted with thermal seals that make it quiet.In 2024 the property had a new bathroom and new bespoke solid wood kitchen fitted. New Bosch energy efficient cooker hood and oven fitted. New energy efficient AEG washer dryer. It was also redecorated throughout. 2 Barker and Stonehouse arm chairs purchased 2025 as current tenant wanted fully furnished. The property is spacious and currently furnished. The sofa bed etc can be removed as required.TV licence included / Monthly front window cleaning included.Would consider 3-4 month shorter tenancy rather than usual 6 month minimum for medical students on rotation during spring / summer months.
--- Property Details --- Type: Flat Bedrooms: 1 Bathrooms: 1 Rent: £1,550 per month Deposit: £1,500 Furnished: Furnished EPC Rating: D Available From: 01 May, 2026 Minimum Tenancy: 3 Months Bills Included: Broadband View Offers Postcode: N1 7GU Listed By: OpenRent Landlord
Location
Address
1 Bed Flat, Vernon Terrace, BN1, N1 7GU
City
Cambridge
Features and Finishes
Furnished, EPC: D, Available: 01 May, 2026, Min tenancy: 3 Months, Bills: Broadband View Offers
Legal Notice
Our comprehensive database is populated by our meticulous research and analysis of public data. MirrorRealEstate strives for accuracy and we make every effort to verify the information. However, MirrorRealEstate is not liable for the use or misuse of the site's information. The information displayed on MirrorRealEstate.com is for reference only.