1 Birrell Court, Kew VIC 3101
Property Details
5
3
House
Description
Property Details: • Type: House
• Bedrooms: 5 • Bathrooms: 3
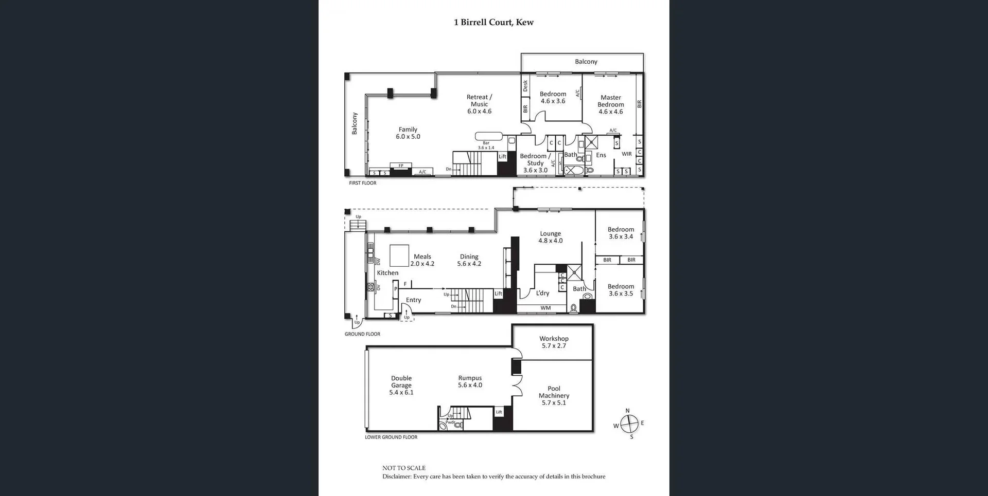
Description: Positioned in a quiet and highly sought-after pocket of Kew, this impressive double-storey contemporary home offers exceptional family living, abundant natural light, and breathtaking uninterrupted northerly views toward the Northern Ranges. Architecturally designed to maximise light and outlook, the residence features expansive floor-to-ceiling glass windows that frame the spectacular views and flood the interiors with sunlight. Property Highlights: Three north-facing living areas capturing sunlight throughout the day Top-floor living and family retreat with built-in bar, split system cooling, and wrap-around balcony with sweeping northerly and north-west views Five generous bedrooms with built-in robes (master with walk-in robe and ensuite) Gourmet kitchen with granite island bench, gas cooking, dishwasher, and ample storage Large family laundry with extensive cabinetry Basement level with double garage plus flexible third garage or additional living/entertaining area, workshop, and powder room Built-in lap pool, perfect for entertaining or relaxing Ducted heating, evaporative cooling, and electric blinds throughout Prime Location: Close to Genazzano FCJ College and several of Melbourne's leading private schools, Stradbroke Park, Victoria Park, High Street shopping and dining, Cotham Road and Burke Road trams, the Eastern Freeway, and local lifestyle amenities. TO BOOK AN INSPECTION click the BOOK AN INSPECTION TIME button and then you can register to inspect. Enter your details and choose a day and time that suit you. If there are no times available, please register your details and you will be notified once an inspection time becomes available. PLEASE NOTE: If you do not register you will not be notified of any cancellations or changes to inspection times
Location
Address
1 Birrell Court, Kew VIC 3101
City
Kew
Features and Finishes
None
Legal Notice
Our comprehensive database is populated by our meticulous research and analysis of public data. MirrorRealEstate strives for accuracy and we make every effort to verify the information. However, MirrorRealEstate is not liable for the use or misuse of the site's information. The information displayed on MirrorRealEstate.com is for reference only.