1 Clingan Street, Wright ACT 2611
Property Details
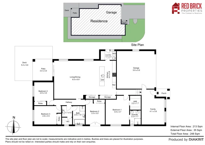
4
2
House
Description
Property Details: • Type: House
• Bedrooms: 4 • Bathrooms: 2
Description: This beautiful four bedroom family home is located in the beautiful suburb of Wright. Designed around the kitchen, this home allows you to enjoy the most of it everyday, let it be entertaining family & friends or recuperating after a long day at work. This home has two separate living areas, a formal lounge as you enter the property which then leads into a large open plan living area that is connected to an alfresco dining area. All bedrooms have built in robes while the main bedroom features a large walk in robe & ensuite. The house also features quality appliances to make life easier, LED downlights, ducted air conditioning. The park situated right across the road, the little ones can always have plenty of room to run around to keep them fit & healthy. Features: Quality ceramic tiling and carpets throughout Granite countertops in the kitchen SMEG stainless steel appliances Grohe quality tapware Generous built-in storage cupboards Spacious walk-in dressing room with master bedroom Smoke alarms in all bedrooms Oversized timber front door with Crimsafe door Intercom with a camera from the front door Auto double garage with internal access Alarm system installed LED lighting throughout the dwelling Gas ducted heating Zoned reverse cycle cooling Main bathroom designed as a suite - allows for more than one user Rainwater tanks plumbed for internal use Outdoor spotlights front and rear Low-maintenance garden Parklands and playground just across the road Bus transport is a few minutes walk Drive to City in 10-12 minutes Walking distance to Charles Weston Primary School, Coombs Medical Centre, and shops Woolworths Supermarket within walking distance Short drive to Denman shops, Cooleman Court shopping, and Woden Plaza Stromlo Forest Park 10-15 minutes walk EER is 6 stars **Whilst care has been taken in the preparation of this information, Red Brick Properties makes no guarantee as to its accuracy. We strongly encourage interested parties to make their own enquiries.** **The tenant must seek the Landlords written consent before keeping a pet. Please be aware that at all stages of the tenancy, consent is required from the lessor for pets to be present at the property.** * *The property does comply with the minimum ceiling insulation standard.**
Location
Address
1 Clingan Street, Wright ACT 2611
City
Wright
Features and Finishes
None
Legal Notice
Our comprehensive database is populated by our meticulous research and analysis of public data. MirrorRealEstate strives for accuracy and we make every effort to verify the information. However, MirrorRealEstate is not liable for the use or misuse of the site's information. The information displayed on MirrorRealEstate.com is for reference only.