1 Eagle Rise, Darlington SA 5047
Property Details
Vacant Land
Description
Property Details: • Type: Vacant Land
• Bedrooms: 0 • Bathrooms: 0
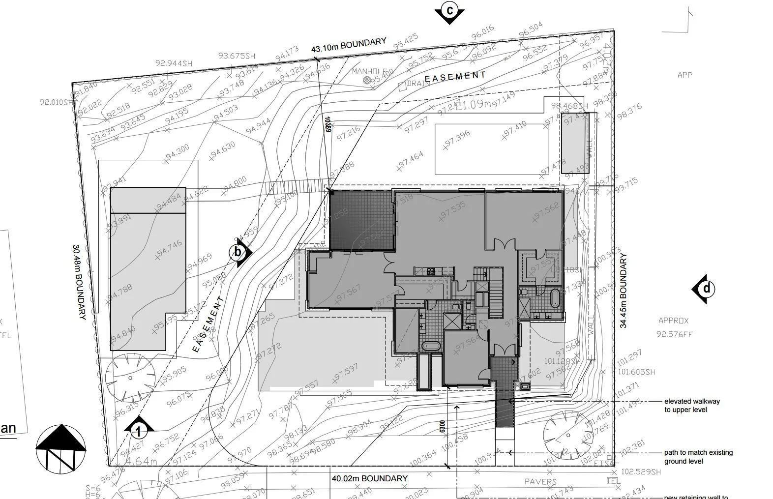
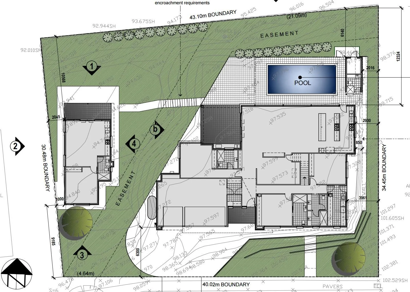
Description: To enquire, please email or call 1300 815 051 and enter code 9803 Discover a rare opportunity to secure a stunning parcel of land at 1 Eagle Rise, Darlington, perched high in the hills with sweeping views. This elevated 1,346m² (approx.) block offers the perfect setting to create your dream home in a peaceful and prestigious location. Tucked away in a quiet location, the property combines seclusion with convenience, only minutes from Flinders University, Flinders Medical Centre, Westfield Marion, and some of Adelaide's best walking trails and beaches. Adding to its appeal, previously council-approved architectural house plans are included in the sale, providing a head start for your custom build and showcasing the full potential of this incredible site. Whether you're looking to build your forever home or invest in a premium location, this is a unique chance to secure blue-chip land with vision already in place. Key Features: - Expansive 1,346m² (approx.) elevated allotment - Breathtaking panoramic views - Quiet, private location - Minutes to local amenities, transport, and schools - Previously approved house plans / architectural drawings included with the sale Don't miss out on this one-of-a-kind opportunity to build in one of Darlington's most desirable addresses. To enquire, please email or call 1300 815 051 and enter code 9803
Location
Address
1 Eagle Rise, Darlington SA 5047
City
Darlington
Features and Finishes
None
Legal Notice
Our comprehensive database is populated by our meticulous research and analysis of public data. MirrorRealEstate strives for accuracy and we make every effort to verify the information. However, MirrorRealEstate is not liable for the use or misuse of the site's information. The information displayed on MirrorRealEstate.com is for reference only.