1 Gapap Street, Tarragindi QLD 4121
Property Details
5
2
House
Description
Property Details: • Type: House
• Bedrooms: 5 • Bathrooms: 2
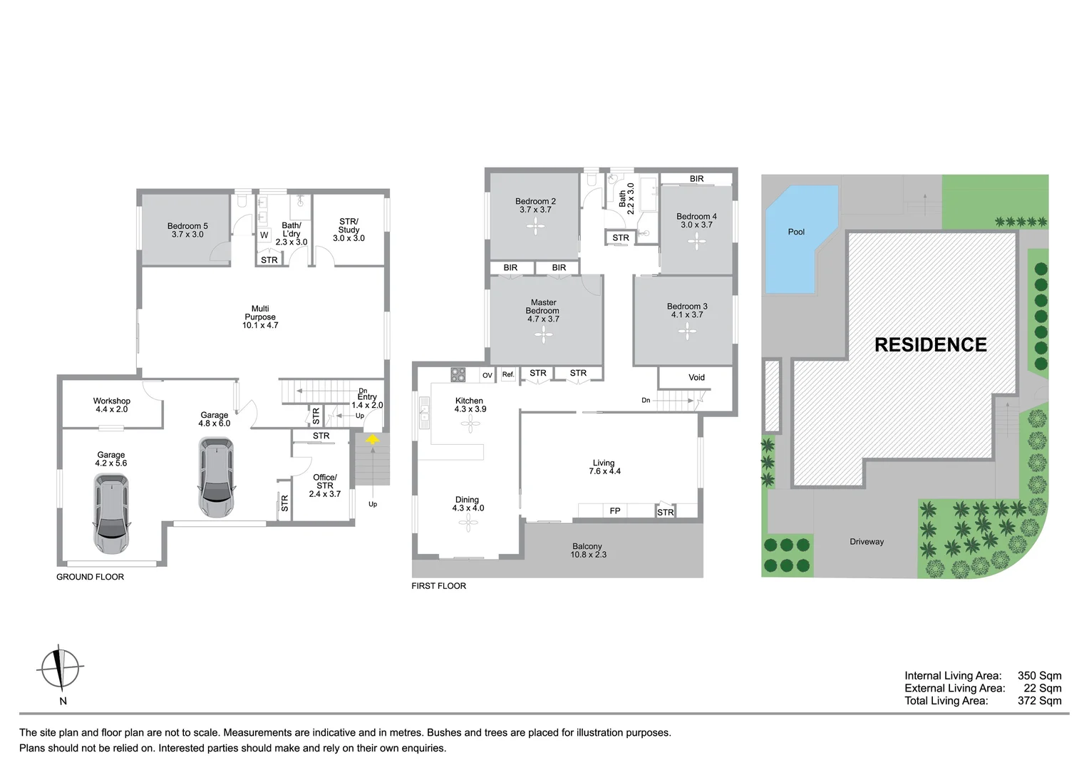
Description: Inspections By Appointment Only A message from the owner: "I built this home in 1967 for my family, It has been a wonderful home to us, and I hope it becomes the same for another family. Back then, homes were built to last. I designed this one to grow with our family, knowing it would go on to hold generations of memories. At 94, it's time for me to downsize, though letting go of a home you built yourself is never easy. I would love to see it filled with life again." Perfectly positioned in one of Tarragindi's most sought-after pockets, this substantial dual-level double brick residence with high ceilings throughout offers exceptional versatility, generous proportions and a flexible layout ideal for large families, multi-generational living, guests or those working from home. Designed with adaptability in mind, the lower level provides a highly functional floorplan with multiple utility spaces that can easily accommodate home offices, teenage retreats or private guest quarters. Upstairs, modern comforts blend with original character features to create a warm, welcoming home designed for relaxed family living and entertaining. Downstairs Features - Double lock-up garage with separate workshop - Additional office with storage located within the garage - Expansive multipurpose room ideal for a rumpus, teenagers' retreat or guest accommodation - Ground-floor bedroom - Shared laundry and bathroom with separate toilet - Dedicated home office providing excellent work-from-home flexibility Upstairs Features - Oversized modern kitchen with extensive storage and generous dining space - Spacious living room featuring air-conditioning and a charming wood fireplace - Seamless flow from the living area to a balcony, perfect for breezy entertaining - Four bedrooms, including a master with triple built-in wardrobes and ceiling fan - Neat family bathroom with separate toilet Outdoor & Additional Highlights - Large non-compliant pool, offering scope to renovate or remove depending on your vision - Established, leafy gardens providing privacy and a tranquil outlook - Excellent potential to enhance, update or personalise Set in a tightly held and highly desirable Tarragindi location, this home delivers outstanding space and flexibility in a suburb renowned for its strong community feel, leafy surrounds and close proximity to the city. Conveniently located just minutes from Wellers Hill State School, Holland Park State High School, Griffith University, local cafés, parks, public transport, with easy access to the M3 and Brisbane CBD. A rare opportunity with endless potential-secure a substantial family home in one of Tarragindi's most tightly held pockets. Inspections by appointment only. Please contact Nicola to arrange a viewing. Disclaimer: We have in preparing this advertisement used our best endeavours to ensure the information contained is true and accurate, but accept no responsibility and disclaim all liability in respect to any errors, omissions, inaccuracies or misstatements contained. Prospective purchasers should make their own enquiries to verify the information contained in this advertisement.
Location
Address
1 Gapap Street, Tarragindi QLD 4121
City
Tarragindi
Features and Finishes
None
Legal Notice
Our comprehensive database is populated by our meticulous research and analysis of public data. MirrorRealEstate strives for accuracy and we make every effort to verify the information. However, MirrorRealEstate is not liable for the use or misuse of the site's information. The information displayed on MirrorRealEstate.com is for reference only.