1 Haley Avenue, Narrabri NSW 2390
Property Details
3
1
House
Description
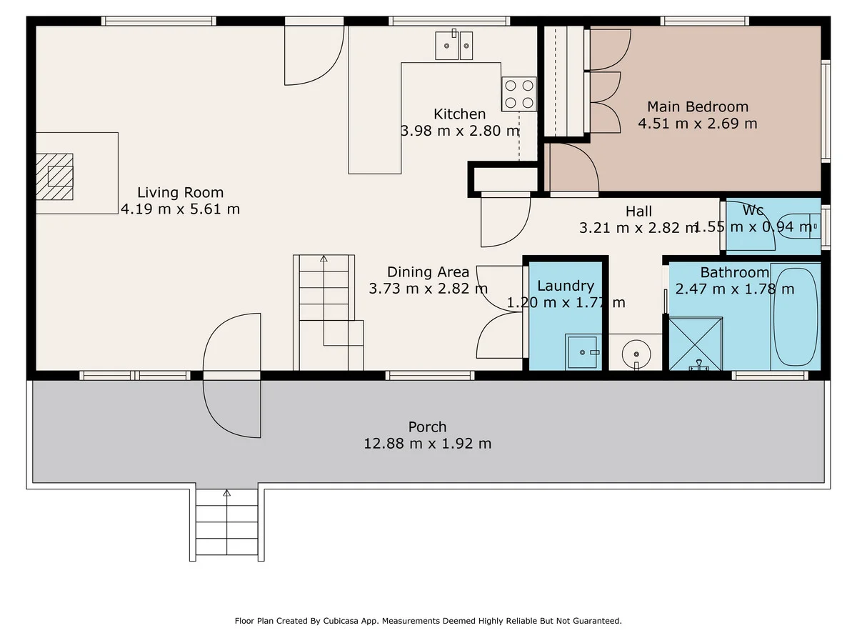
Property Details: • Type: House
• Bedrooms: 3 • Bathrooms: 1
Description: Step into this inviting two-story home where rustic charm meets modern comfort the perfect blend for investors, couples, or short-stay hosts seeking character and income potential. Set on a generous 751m² block, the property features a warm timber exterior, leafy surrounds, and a versatile layout ideal for permanent rental or Airbnb use. Currently leased at $520 per week until July 2026, this home delivers a strong yield and secure long-term income with the flexibility to move in and make it your own or convert into a high-performing short-stay accommodation once the tenancy concludes. Property Highlights: - Open-plan living and dining areas perfect for relaxed entertaining - Functional kitchen overlooking the dining area for easy meal prep - Three comfortable bedrooms plus a loft retreat, ideal as a home office or guest space - Ground-floor main bedroom with convenient access to the bathroom and laundry - Wood fire and split system air-conditioning for year-round comfort - Expansive, fully fenced backyard with side access and two garden sheds ideal for storage or future improvements - Attractive 751m² block offering space, privacy, and investment potential Whether you're seeking a high-yield rental, a future Airbnb-ready retreat, or a low-maintenance family home, this property delivers versatility and solid returns in a desirable residential pocket. Don't miss this smart investment opportunity call Hennessy Real Estate on (02) 6792 5566 to book your inspection today.
Location
Address
1 Haley Avenue, Narrabri NSW 2390
City
Narrabri
Features and Finishes
None
Legal Notice
Our comprehensive database is populated by our meticulous research and analysis of public data. MirrorRealEstate strives for accuracy and we make every effort to verify the information. However, MirrorRealEstate is not liable for the use or misuse of the site's information. The information displayed on MirrorRealEstate.com is for reference only.