1 Mitchells Lane, Sunbury VIC 3429
Property Details
3
1
House
Description
Property Details: • Type: House
• Bedrooms: 3 • Bathrooms: 1
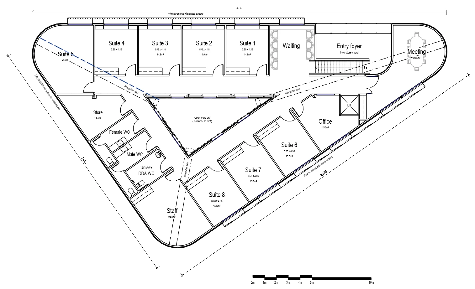
Description: Think outside the square. Consider this well-presented home to occupy now featuring 3 bedrooms, lounge/dining, neat kitchen, huge undercover entertaining area and double carport/garage. Alternatively retain the Tenant who is currently leasing on a monthly basis ( $550 per week )and is happy to stay on while you confirm your perfect timing. Premium gateway position to the Township with high exposure guaranteed. With the challenging process of obtaining a permit completed, we now present a development/investment opportunity too good to pass up. Key Features of the Permit -757sqm land ( approx. ) - Suits Premium executive class offices/medical suites etc ( s.t.c.a. ) - Current Sizes ranging from 14sqm - 25sqm (approx.) - Ample on-site private parking - Large Centrally located ground level Reception/Waiting area - Elevator/Staircase access to suites - Common board/meeting/staff/storage rooms - Full bathroom facilities - Architecturally designed, State of the Art Building Secure an important future requirement or elevate your Profession/investment to ensure you take your business to the next level in one of Melbourne's fastest growing Metropolitan suburbs. (Population target 80,000+, with thousands of more potential clients living in neighbouring Townships) Perfect investment for the forward thinkers. All information available on request. Please note we require photo ID when attending opens In preparing this information, Ray White Sunbury has used our best endeavours to ensure that the statements contained herein are true and accurate. All information (including but not limited to the property area, floor size, price, address and general property description) has been provided to Ray White Sunbury by third parties. As such, Ray White Sunbury makes no statement, representation, or warranty and assumes no legal liability in relation to the accuracy, context or suitability for any purpose of the information provided in advertising the property. Prospective purchasers should conduct their own due diligence and inquiries to verify the information independently. We encourage buyers to make their own enquiries and refer you to the due diligence checklist provided by Consumer Affairs for further information http://www.consumer.vic.gov.au/duediligencechecklist
Location
Address
1 Mitchells Lane, Sunbury VIC 3429
City
Sunbury
Features and Finishes
None
Legal Notice
Our comprehensive database is populated by our meticulous research and analysis of public data. MirrorRealEstate strives for accuracy and we make every effort to verify the information. However, MirrorRealEstate is not liable for the use or misuse of the site's information. The information displayed on MirrorRealEstate.com is for reference only.