1 Whalan Place, Whalan NSW 2770
Property Details
1
1
House
Description
Property Details: • Type: House
• Bedrooms: 1 • Bathrooms: 1
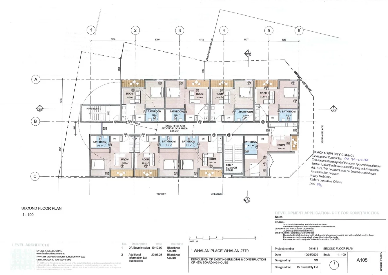
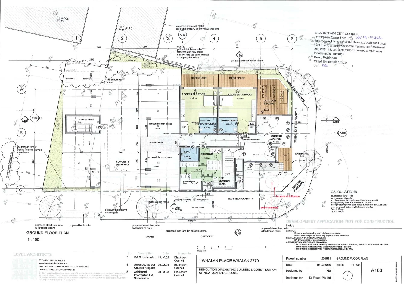
Description: 1 Whalan Place, Whalan is proudly presented by Rafael Posadas of gofysh | estate agents. DA Approved 18 room Boarding House (DA-19-01466 with Blacktown Council) Determination Date - 07/07/2020 Boarding House is approved for 18 rooms and 11 car spaces, with balconies and open spaces UPDATE !!! Plans for DA uplift for 30 rooms with at grade parking - call 0433 777 941 for more information E1 Local Centre Land Zoning 12m Building Height 67.8m Frontage 658m2 Land Area At-grade Parking Boarding House rental potential - $561,600 per annum ($360 per week per room) 1 min (45m) walk to Whalan Shops 2 min (110m) walk to Whalan Public School 2 min (130m) walk to nearest Bus Stop on Bulolo Drive 3 min (1.8km) drive to Westfield Mount Druitt 5 min (2.6km) drive to Mount Druitt Train Station 5 min (3km) drive to Mount Druitt Hospital This is a rare offering that is highly sought! Please call me directly on 0433 777 941 for further information or to arrange a private inspection Disclaimer - The information on this summary sheet should not be relied on as a substitute for legal and real estate advice. You should make your own inquiries as to the accuracy of any information or material contained in this document.
Location
Address
1 Whalan Place, Whalan NSW 2770
City
Whalan
Features and Finishes
None
Legal Notice
Our comprehensive database is populated by our meticulous research and analysis of public data. MirrorRealEstate strives for accuracy and we make every effort to verify the information. However, MirrorRealEstate is not liable for the use or misuse of the site's information. The information displayed on MirrorRealEstate.com is for reference only.