10 Manam Place, Glenfield NSW 2167
Property Details
3
2
House
Description
Property Details: • Type: House
• Bedrooms: 3 • Bathrooms: 2
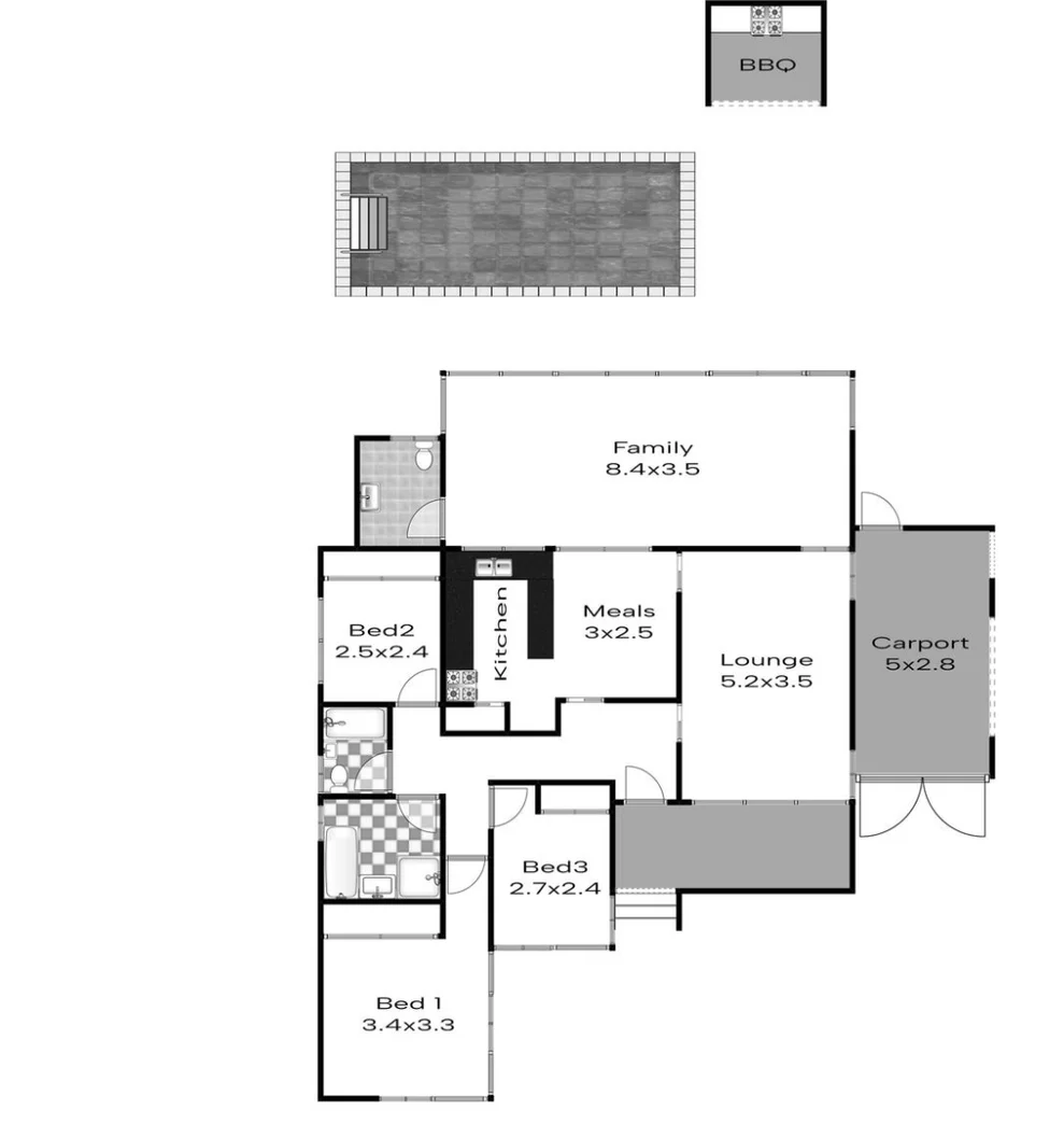
Description: Land and Lease Realty Glenfield present this beautiful house for Lease. This inviting residence features three generous bedrooms and two beautifully renovated bathrooms, delivering modern convenience for families or savvy buyers alike. Thet functional layout flows seamlessly through to a spacious sunroom, providing the perfect space for relaxation, entertaining, or an additional living area all year round. Step outside and enjoy the ultimate lifestyle bonus - an inground swimming pool, ideal for summer entertaining and family fun. Completing the package is the side access to the single lock-up caport, offering secure parking and additional storage. Key features include: • Three well-sized bedrooms with built in robes and floorboards throughout • Two stylishly renovated bathrooms featuring floor to ceiling tiles and modern tapware • Light-filled, spacious sunroom • Neat and tidy kitchen with ample cupboard space • Formal lounge room plus meals area • Inground swimming pool for year-round enjoyment • Lush green grass in the low maintenance backyard • Side access with lock up gates to the carport • Quiet cul-de-sac location in sought-after Glenfield Location : • Approximately 490m to Glenwood Public School • 1.7km to Glenfield Public School • 2.3km to James Meehan High School • 1.8km to Glenfield station • 2.4km to Hurlstone Agricultural High School • 1.7km to Glenfield local shops • 2.8km to Glenquarie Town Centre For More info Land and Lease Realty Glenfield Ph 0296180554,0415588981
Location
Address
10 Manam Place, Glenfield NSW 2167
City
Glenfield
Features and Finishes
None
Legal Notice
Our comprehensive database is populated by our meticulous research and analysis of public data. MirrorRealEstate strives for accuracy and we make every effort to verify the information. However, MirrorRealEstate is not liable for the use or misuse of the site's information. The information displayed on MirrorRealEstate.com is for reference only.