10 Moonbria Way, Templestowe VIC 3106
Property Details
5
2
House
Description
Property Details: • Type: House
• Bedrooms: 5 • Bathrooms: 2
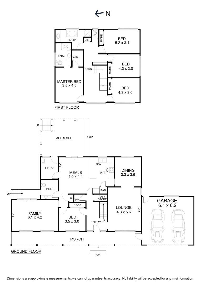
Description: A Perfect Blend of Comfort, Style, and Convenience Discover the ideal family home in the highly sought-after suburb of Templestowe. This beautifully presented five-bedroom residence offers generous proportions, versatile living spaces, and modern comfortsperfectly suited to growing families or those seeking both space and functionality. Property Features: Five Generously Sized Bedrooms: Including a versatile ground-floor bedroom, ideal as a guest suite or home office. Expansive Living Areas: Enjoy multiple living zones, including two spacious lounges, an open-plan kitchen and meals area with Bosch Stainless Steel Appliances and a fully integrated Dishwasher. A separate dining spaceperfect for both everyday living and entertaining. Large Rumpus Room: A dedicated space for relaxation, recreation, or hosting family and friends. Private Master Retreat: The master bedroom features a walk-in wardrobe and a well-appointed ensuite, offering comfort and privacy. Main Bathroom with Bathtub: A spacious central bathroom complete with a bathtubideal for unwinding at the end of the day. Convenient Ground-Floor Powder Room: Perfect for guests and everyday practicality. Abundant Storage Throughout: Designed with functionality in mind to keep your home organised and clutter-free. Outdoor Entertaining Area: A low-maintenance garden complemented by a large undercover deck and paved areaideal for year-round entertaining and family enjoyment. Year-Round Climate Comfort: Equipped with three split systems downstairs and ducted refrigerated cooling upstairs in addition to ducted heating to ensure comfort in every season. Secure remote controlled 2 car garage Prime Location: Positioned within the coveted East Doncaster Secondary College zone and just minutes from major shopping destinations such as The Pines Shopping Centre and Westfield Doncaster, this home offers exceptional convenience. Enjoy easy access to local parks, public transport, and a welcoming, family-oriented community. Register to Stay Informed You are required to register. It's best to register now rather than at the inspection, to ensure you receive any updates - time changes, cancellations, price changes, or any other important notifications especially if changes occur after hours.
Location
Address
10 Moonbria Way, Templestowe VIC 3106
City
Templestowe
Legal Notice
Our comprehensive database is populated by our meticulous research and analysis of public data. MirrorRealEstate strives for accuracy and we make every effort to verify the information. However, MirrorRealEstate is not liable for the use or misuse of the site's information. The information displayed on MirrorRealEstate.com is for reference only.