102/15 Felix Street, Lutwyche QLD 4030
Property Details
2
2
House
Description
Property Details: • Type: House
• Bedrooms: 2 • Bathrooms: 2
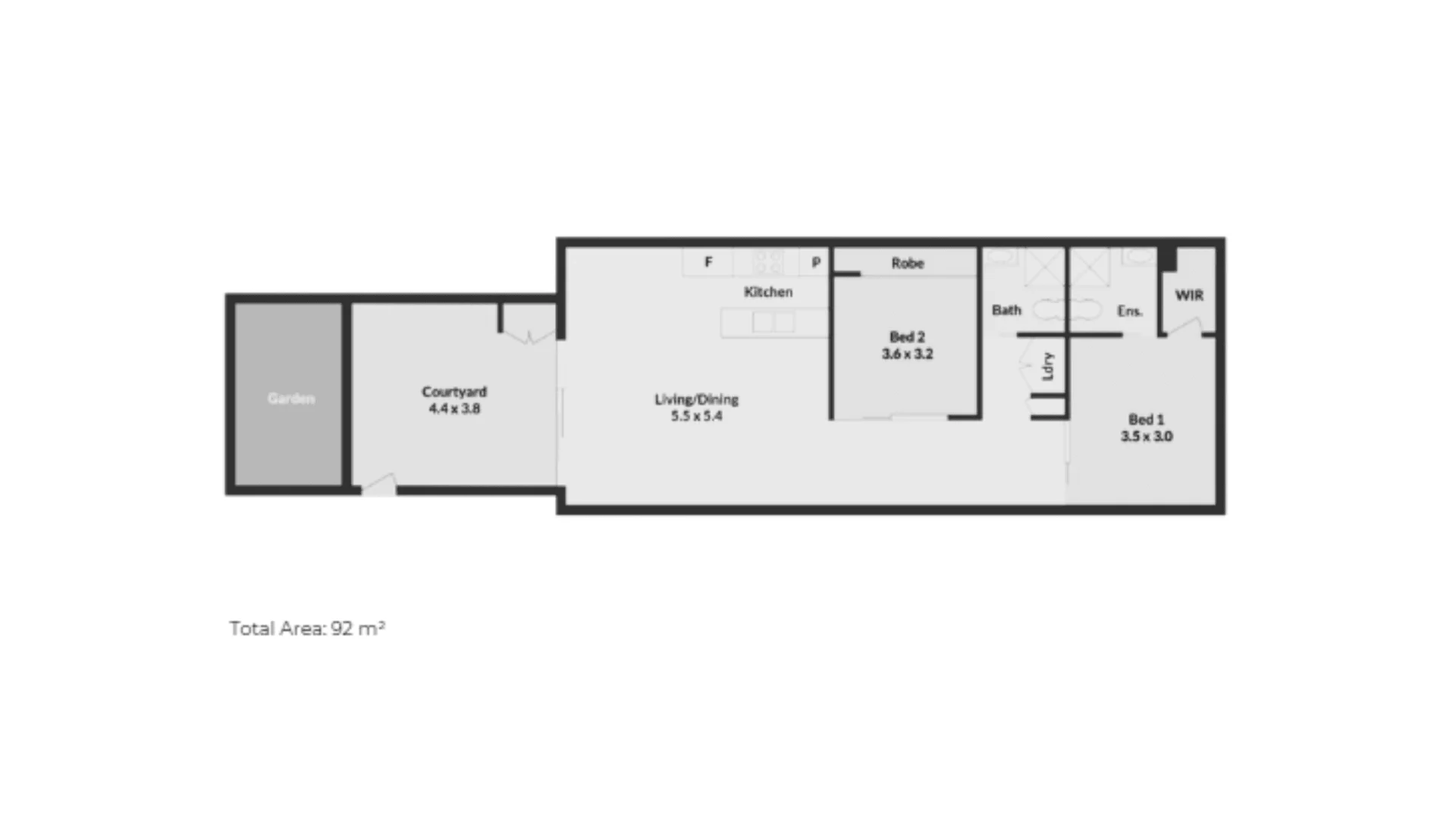
Description: A fantastic opportunity to secure a low-maintenance home in a highly convenient location. Positioned in the prestigious Circles on Felix, this light-filled ground-floor apartment offers spacious living with the added benefit of separate private street access. Property Highlights: Expansive private courtyard Louvres throughout for excellent ventilation Two generous bedrooms Master with walk-in robe and modern ensuite Crimsafe security screens Split-system air-conditioning Location Features: Only 6km to Brisbane CBD Walk to cafés, coffee shops & fitness centres Close to Vera Canale Park & playground Easy access to Kedron Brook paths Quick access to Airport Link & Clem7 Tunnel Within Wooloowin State School & Kedron State High catchments PLEASE SELECT THE BOOK INSPECTION BUTTON OR CONTACT AGENT TO REGISTER OR ARRANGE AN INSPECTION OF THE PROPERTY, PLEASE NOTE ONCE REGISTERED YOU WILL BE KEPT INFORMED OF VIEWING DETAILS. *Important* Whilst every care is taken the preparation of the information contained in this marketing, Coronis will not be held liable for the errors in typing or information. All information is considered correct at the time of publishing.
Location
Address
102/15 Felix Street, Lutwyche QLD 4030
City
Lutwyche
Features and Finishes
None
Legal Notice
Our comprehensive database is populated by our meticulous research and analysis of public data. MirrorRealEstate strives for accuracy and we make every effort to verify the information. However, MirrorRealEstate is not liable for the use or misuse of the site's information. The information displayed on MirrorRealEstate.com is for reference only.