103 Mildred Street, Beddau, Pontypridd

GBP 150000 For Sale

Property Details

Property Type

Plot

Description

Property Details: • Type: Plot • Tenure: N/A • Floor Area: N/A

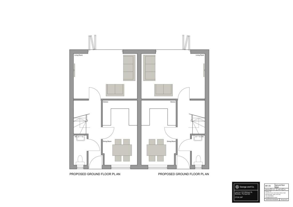
Key Features: • Plot of land with outline planning prmission • O/L Planning for 2 x three bedroom semi detached houses • Approximately 21m x 10m • Close to amenities, shops, schools and main roads • Excellent opportunity

Location: • Nearest Station: Trefforest Station • Distance to Station: 2.4 miles

Agent Information: • Address: 22 Market Street, Pontypridd, CF37 2ST

Full Description: ** Building Plot ** Outline Planning Permission Granted **Located in a popular residential area within minutes of many amenities, including shops, schools, take aways and main roads.A plot of land with outline planning permission for 2 x 3 bedroom semi detached houses with off road parking.The plot is approximately 21m x 10m.Brochures103 Mildred Street, Beddau, PontypriddBrochure

Location

Address

103 Mildred Street, Beddau, Pontypridd

City

Pontypridd

Features and Finishes

Plot of land with outline planning prmission, O/L Planning for 2 x three bedroom semi detached houses, Approximately 21m x 10m, Close to amenities, shops, schools and main roads, Excellent opportunity

Legal Notice

Our comprehensive database is populated by our meticulous research and analysis of public data. MirrorRealEstate strives for accuracy and we make every effort to verify the information. However, MirrorRealEstate is not liable for the use or misuse of the site's information. The information displayed on MirrorRealEstate.com is for reference only.

Real Estate Broker
Hoskins Johnson, Pontypridd
Brokerage
Hoskins Johnson, Pontypridd
Top Tags
21m x 10m plot
Likes

0

Views

143

This website uses cookies to ensure you get the best experience. Learn more