10346 Loyalist Parkway
Property Details
2
1
Vacant
Description
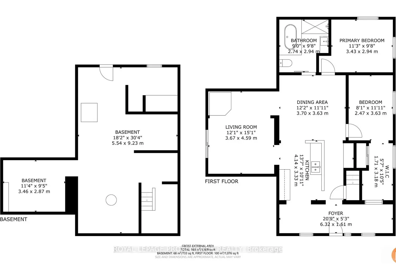
A Rare Project Home with Heart, History & Huge Potential. Set on just over half an acre, only five minutes to the Glenora Ferry, this former schoolhouse-turned-residence offers a unique opportunity for someone with vision to restore and transform this property. With easy access to Prince Edward County's wineries, beaches & charm via the ferry, and a convenient commute toward Napanee, Kingston or the 401, the location truly delivers the best of both worlds. This isn't a simple handyman job, it's a major renovation project perfect for those who dream big and love character. Inside you'll find two bedrooms plus a den, kitchen, living room, dining room and full bath. The unfinished walk-out basement offers space for workspace or storage. The metal roof and propane furnace provide a solid starting point. If you've been searching for a property with story, soul and strong upside, this is your canvas. Bring your imagination, your plans, and create something remarkable in a location where opportunity meets charm.
Location
Address
10346 Loyalist Parkway
City
Greater Napanee
Features and Finishes
None
Legal Notice
Our comprehensive database is populated by our meticulous research and analysis of public data. MirrorRealEstate strives for accuracy and we make every effort to verify the information. However, MirrorRealEstate is not liable for the use or misuse of the site's information. The information displayed on MirrorRealEstate.com is for reference only.