106 Stone Lane, Worthing, West Sussex BN13 2BG

GBP 95000 For Sale

Property Details

Property Type

Commercial Property

Description

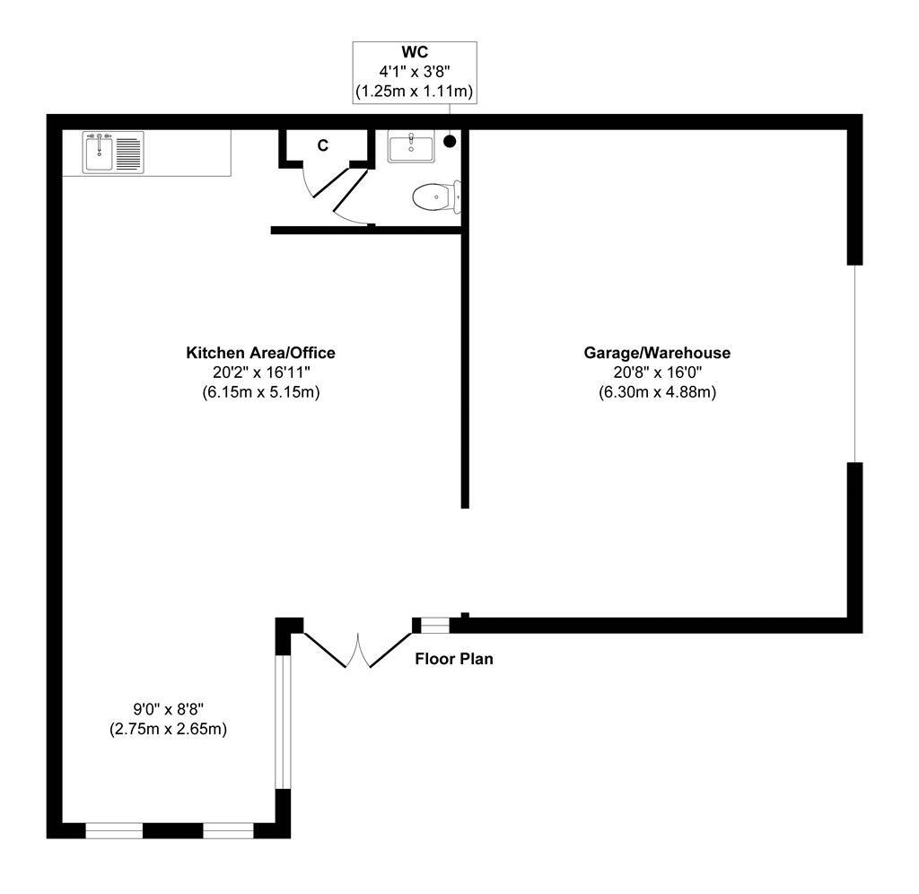
Property Details: • Type: Commercial Property • Tenure: N/A • Floor Area: N/A

Key Features: • A detached ground floor commercial unit comprising of office and attached work shop an approx. 765 sq ft • Instant asset management potential to let out in its current use • Development potential to convert into a dwelling (subject to the requisite consents) • Suitable for a owner occupiers • No VAT on sale price

Location: • Nearest Station: West Worthing Station • Distance to Station: 1.1 miles

Agent Information: • Address: 33 Margaret Street London W1G 0JD

Full Description: StrapLineAuction Sale - 12/02/2025A detached ground floor commercial unit comprising of office and attached work shop. Vacant DescriptionFreehold detached single storey commercial building comprising office space and adjacent garage/workshop.The property can be let out in its current use or might have development potential to convert into a dwelling (subject to the requisite consents)LocationThe property is situated on the junction of Stone Lane and Salvington Road. Public transport links are very well provided via a network of local bus services, together with local railway stations including Durrington-on-Sea, West Worthing, and Worthing. Shopping amenities can be found locally, with a further range of shops, bars and restaurants located in Worthing Town Centre. Recreational pursuits can also be found within Worthing including the activities and spaces along the sea front.TenancyVacant AccommodationOffice/kitchen area, garage/workshop, WCAn approx. 765 sq ft

Location

Address

106 Stone Lane, Worthing, West Sussex BN13 2BG

City

Worthing

Features and Finishes

A detached ground floor commercial unit comprising of office and attached work shop an approx. 765 sq ft, Instant asset management potential to let out in its current use, Development potential to convert into a dwelling (subject to the requisite consents), Suitable for a owner occupiers, No VAT on sale price

Legal Notice

Our comprehensive database is populated by our meticulous research and analysis of public data. MirrorRealEstate strives for accuracy and we make every effort to verify the information. However, MirrorRealEstate is not liable for the use or misuse of the site's information. The information displayed on MirrorRealEstate.com is for reference only.

Real Estate Broker
Savills Auctions, London
Brokerage
Savills Auctions, London
Top Tags
Likes

0

Views

125

This website uses cookies to ensure you get the best experience. Learn more