108 Burlington Street, Crows Nest NSW 2065
Property Details
2
1
House
Description
Property Details: • Type: House
• Bedrooms: 2 • Bathrooms: 1
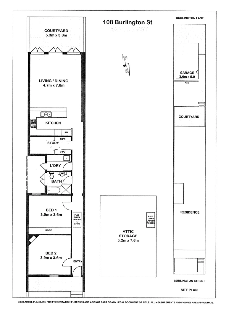
Description: This superb semi detached home offers a fabulous lifestyle, combining an open free flowing floor plan, with a perfect sunny north to rear aspect in one of Crows Nest's coveted locations. 2 bedrooms plus study, main with built in robes, jet master fireplace Superb indoor outdoor lifestyle with spacious living areas Large kitchen with quality appliances, Corion bench tops Beautifully landscaped private parterre styled gardens Modern stylish bathroom, separate laundry with second wc Air conditioning Attic storage, High ceilings Lock up garage Walk to Crows Nest Metro, cafes & restaurants
Location
Address
108 Burlington Street, Crows Nest NSW 2065
City
Crows Nest
Features and Finishes
None
Legal Notice
Our comprehensive database is populated by our meticulous research and analysis of public data. MirrorRealEstate strives for accuracy and we make every effort to verify the information. However, MirrorRealEstate is not liable for the use or misuse of the site's information. The information displayed on MirrorRealEstate.com is for reference only.