10A Folkestone Rd, South Brighton SA 5048
Property Details
3
2
House
Description
Property Details: • Type: House
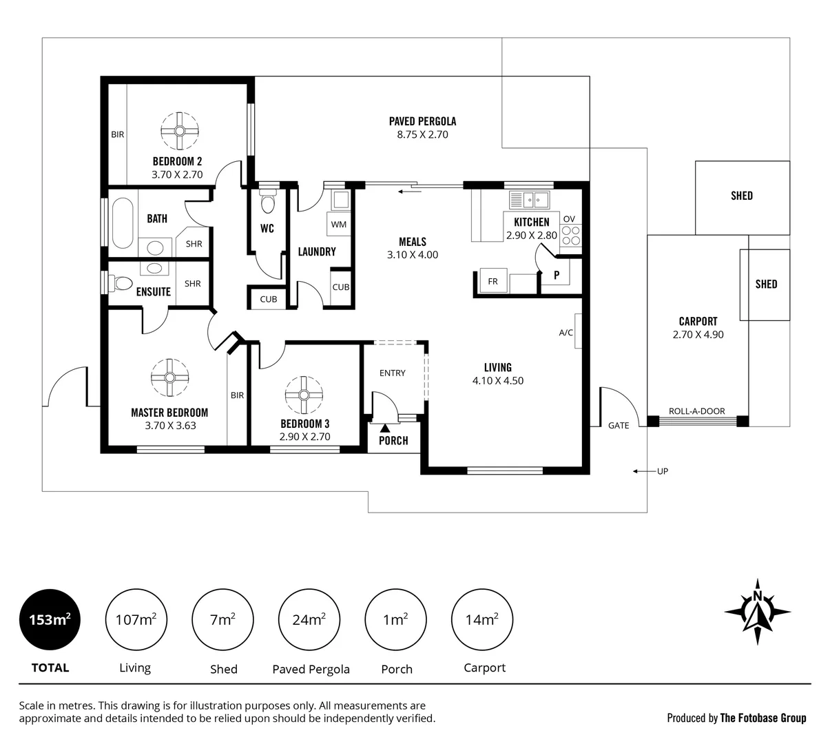
• Bedrooms: 3 • Bathrooms: 2
Description: ** WE ARE PLEASED TO ACCEPT APPLICATIONS PRIOR TO THE INSPECTION ONLINE VIA WWW.RESIDENTIALLETTING.COM.AU ** ** ALL ATTENDEES MUST REGISTER TO ATTEND THE OPEN. CLICK ON 'BOOK INSPECTION' TO REGISTER** Perfectly positioned in a quiet, convenient location, this beautifully updated home offers relaxed coastal living just moments from the beach, local parks and public transport. Step inside to discover a light-filled and modern interior, featuring a spacious lounge flowing seamlessly through to the dining area and a functional, well-appointed kitchen. The home has been thoughtfully updated throughout, offering both comfort and style. Comprising three bedrooms, two include built-in robes, while all bedrooms are fitted with ceiling fans for year-round comfort. The master bedroom enjoys the added benefit of an updated ensuite. Stunning plantation shutters to the front of the home add a touch of elegance and privacy. Outside, you'll love the fantastic undercover entertaining areaperfect for hosting family and friends. The property also includes a small garden shed, a single carport, and additional off-street parking for a second vehicle. Located just a short distance to the train line for an easy commute, as well as the beautiful Seacliff Beach, local reserves, and quality schools, this home offers the perfect blend of lifestyle and convenience. Features include: - 3 bedrooms (2 with built-in robes) - Ceiling fans to all bedrooms - Updated ensuite to master - Light-filled lounge and dining area - Modern, functional kitchen - Plantation shutters to front rooms - Heating and cooling - Undercover outdoor entertaining area - Small garden shed Single carport + additional driveway parking A fantastic opportunity to secure a well-presented home in a highly desirable coastal suburb. Disclaimer: All information contained in this advertisement has been gathered from sources we believe to be accurate, however, we cannot guarantee or give any warranty about the information provided and we accept no liability for any errors or omissions. Interested parties should seek independent advice before making any leasing decisions. RLA168235
Location
Address
10A Folkestone Rd, South Brighton SA 5048
City
South Brighton
Legal Notice
Our comprehensive database is populated by our meticulous research and analysis of public data. MirrorRealEstate strives for accuracy and we make every effort to verify the information. However, MirrorRealEstate is not liable for the use or misuse of the site's information. The information displayed on MirrorRealEstate.com is for reference only.