11 Duneview Drive, Ocean Grove VIC 3226
Property Details
4
2
House
Description
Property Details: • Type: House
• Bedrooms: 4 • Bathrooms: 2
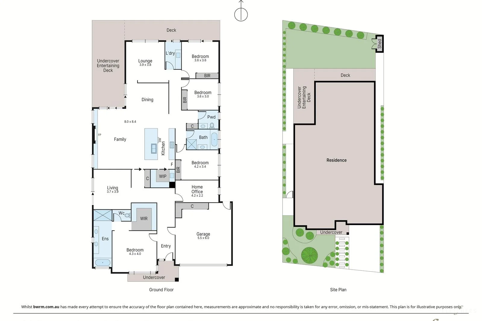
Description: Achieving a harmonious balance of family functionality and low maintenance ease, this superbly presented residence offers four bedrooms, a dedicated study, and three generous living zones, with quality finishes at every turn. Positioned in the ever-popular Kingston Coast Estate, prized for its parklands, waterside walking tracks, and proximity to Marketplace shops, local schools, and Collendina Beach, it's a haven of lifestyle excellence for large and growing families. High 2.7m, sky-lit ceilings accentuate the sense of space, while the crisp, coastal-inspired palette is highlighted by an ensemble of floating timber floors, elegant plantation shutters, and glistening stone benchtops throughout. A brilliant indoor-outdoor entertainer, the home's heart delivers wonderful space for dining and relaxation beside a cosy gas log fire, while sliding stacker doors integrate with the wraparound alfresco deck, inviting year-round entertaining with a barbecue kitchen, Vergola, and remote-operated café blinds. At centre stage, the stone-draped kitchen effortlessly caters to the masses with ILVE 900mm oven and six-burner cooktop, Ariston dishwasher, and butler's pantry, while mingling family and friends around an expansive breakfast island. Pampering work, rest, and play, the main bedroom indulges with split system comfort, a walk in robe, and a lavish twin vanity ensuite with spa bath, double shower, and separate WC, complemented by a private lounge and generous study. Three additional bedrooms each with mirrored built in robes and ceiling fans are thoughtfully zoned to the rear wing, accompanied by a family bathroom, a storage rich laundry, and a third living zone that continues the fabulous functionality. Meticulously thought out for practical family living, a long list of extras includes a double garage with handy storage area, ducted heating, evaporative cooling, split system air-conditioning, 6.6kW of solar, automated lawn watering system, and external security blinds. Whether enjoying permanently or as a set-and-forget weekender, this refined coastal haven delivers uncompromised comfort, space, and ease. -Uncompromising proportions with four bedrooms, dedicated study, and three versatile living zones -Superbly finished interiors with VELUX skylights, 2.7m ceilings, and a coastal inspired palette -Stone-topped kitchen with quality ILVE appliances and butler's pantry -Expansive alfresco deck with BBQ kitchen, Vergola, and café blinds for year-round enjoyment -Luxurious main suite with walk-in robe and twin vanity ensuite with spa bath and double shower -Positioned in Kingston Coast Estate, renowned for its open green spaces and friendly community
Location
Address
11 Duneview Drive, Ocean Grove VIC 3226
City
Ocean Grove
Features and Finishes
None
Legal Notice
Our comprehensive database is populated by our meticulous research and analysis of public data. MirrorRealEstate strives for accuracy and we make every effort to verify the information. However, MirrorRealEstate is not liable for the use or misuse of the site's information. The information displayed on MirrorRealEstate.com is for reference only.