11 Mia Dr
CAD 779,900
For Sale
MLS: 40658202
Property Details
Bedrooms
3
Bathrooms
3
Property Type
Row/Townhouse
Description
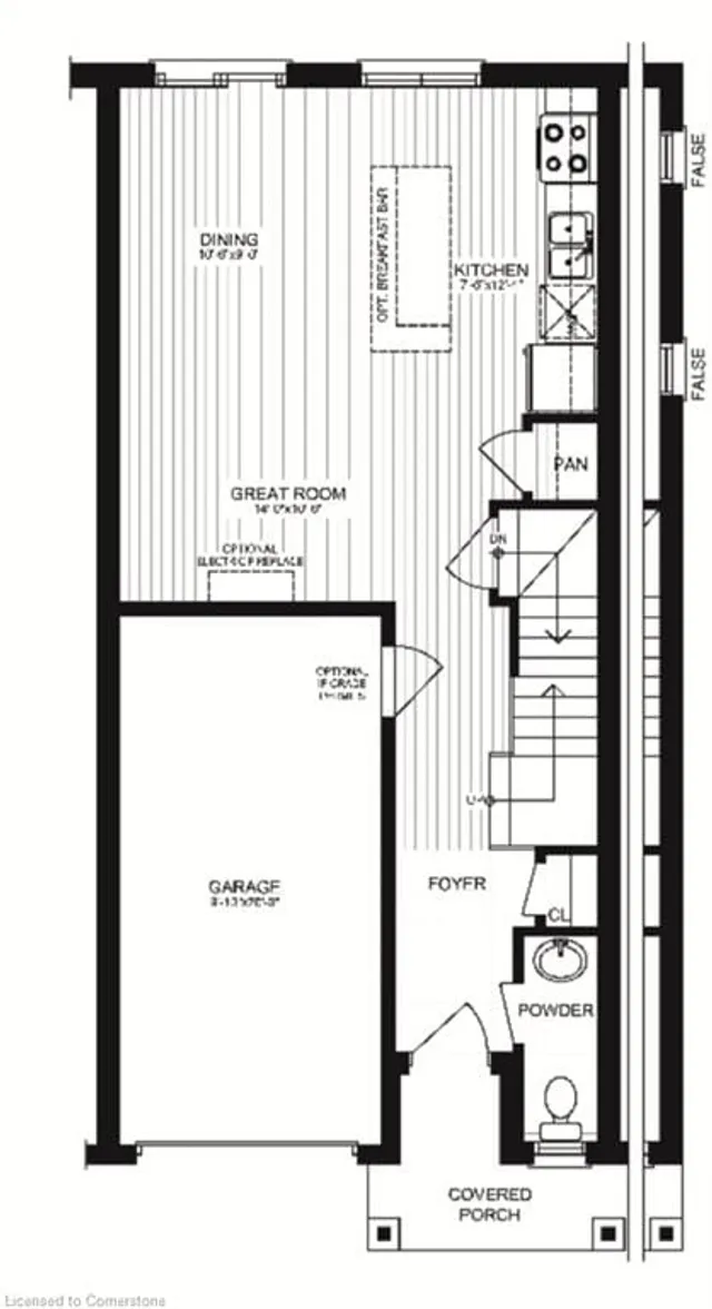
MLS#: 40658202 Type: Row/Townhouse Living Space: 1300 sqft Year Built: N/A Parking Spaces: 2 Garage Spaces: 1 Basement: Full, Unfinished, Sump Pump Swimming Pool: No Lot Size: 18.92 x 91.04 Annual Taxes: $4798.56
Location
Address
11 Mia Dr
City
Hamilton
Legal Notice
Our comprehensive database is populated by our meticulous research and analysis of public data. MirrorRealEstate strives for accuracy and we make every effort to verify the information. However, MirrorRealEstate is not liable for the use or misuse of the site's information. The information displayed on MirrorRealEstate.com is for reference only.