11 Saint Clements Close, Telina QLD 4680
Property Details
4
2
House
Description
Property Details: • Type: House
• Bedrooms: 4 • Bathrooms: 2
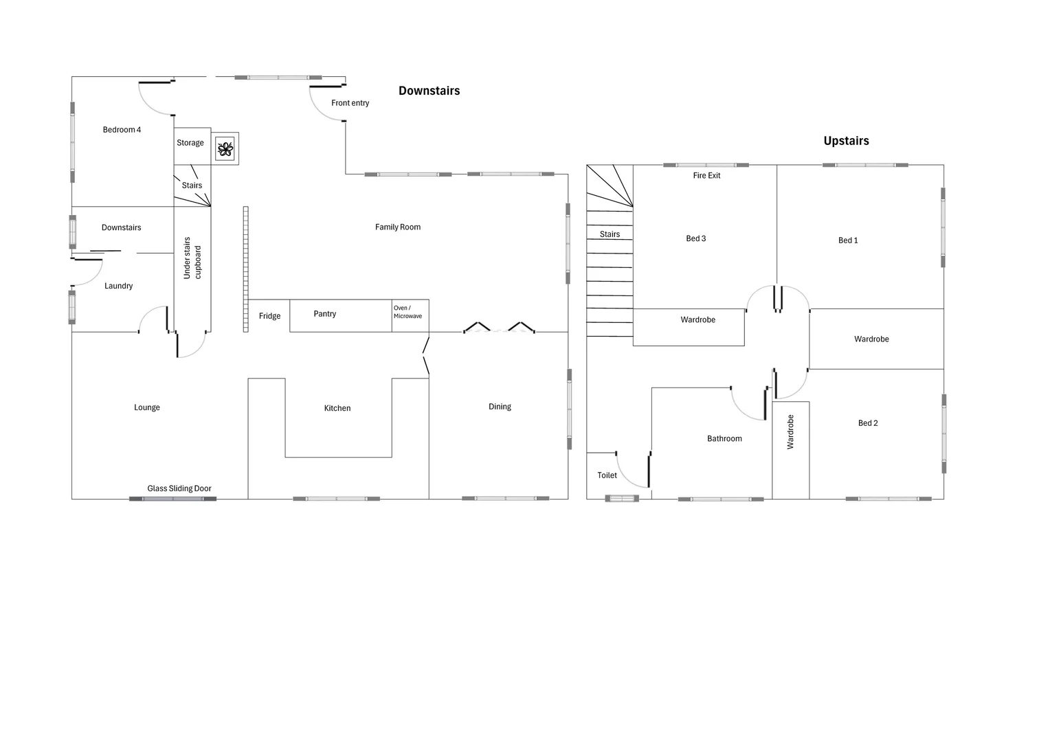
Description: The phone enquiry code for this property is - 6188 4 bedroom, 2 bathroom, 4 parking You are going to love this house and all it offers street appeal, privacy, views, outdoor living, low maintenance gardens, wildlife & birds galore and so much more. Set on a 860m2 private block at the top end of a quiet cul de sac, this quality executive style home in the pretty and quiet suburb of Telina is one you are going to want to see, backing on to the Mt Biondello bush with spectacular views over Gladstone, Mt Larcom and the Narrows it is freshly renovated and ready for you to move in. The home features: Exceptional presentation inside and out with freshly painted exterior and interior walls and ceilings throughout. Beautiful oak flooring throughout. Air conditioning and ceiling fans throughout. Brand new carpet in the front family room and staircase. Four very tidy and airy air-conditioned bedrooms with ceiling fans, three with generous built-in robes. Two living room spaces: A plush carpeted family room at the front of the house with floor to ceiling windows looking out over the garden and views, and a tv room / loungeroom that is connected to the open kitchen living dining area. The dining room space is connected to the kitchen through a large servery window and looks out through the bi-fold doors to the views via the family room. The kitchen features all Miele appliances a wall oven, dishwasher, and 3-burner induction stove top, generous counterspace and storage, large fridge space and a large floor to ceiling pantry. o Buyers have the option to include the amazing Mitsubishi Electric 564L LX Series French Door Fridge-Freezer with ice maker (not plumbed style). The main bathroom and laundry are beautifully and tastefully renovated. Sleek Crimsafe screening is installed on all windows and doors, including the sliding door leading onto the rear pergola (fire escape Crimsafe window installed in upstairs bedroom) A spectacular outdoor entertainment area that is a lifestyle on its own and arguably the centrepiece of this property (more detail on this below). Two-bay garage with remote controlled panel door Custom designed shade structure over driveway to protect your car or boats Full termite barrier has been maintained around the entire property since the current owners purchased (18 years). Gardens are fully reticulated and on a computerized timer, all gardens are very tidy and well maintained there is nothing to do here except make it your own! Nothing has been missed. The big hitter in this property is the outdoor living. It features a beautifully built, fully tiled, fully screened rear pergola running the length of the house and leads out to massive 9m x 6m tiled entertainment area with tastefully designed kitchen and bar area with views to die for. The stunning entertainment area features three large 3m retractable roller blinds, opening up to picture-frame the views over Mt Larcom, Gladstone and the Narrows. It provides enough room for a pool table and outdoor lounge suite and includes a full outdoor kitchen and bar, with built-in family sized Weber and extraction fan, sink, bar fridge and plenty of storage. There is an additional pergola set off the rear with optional suspended shelving where your favourite plants will flourish, creating a lush yet very tidy space. A 'Hoselink' hose and powerpoints are setup throughout the verandah and entertainment space making it a very liveable and functional area. Behind the entertainment space is a 5m x 3m shed for all of your tools and equipment, leading out to a concrete pad workspace (2x storage cupboards included), a 3m x 1m potting shed undercover that backs onto the large raised veggie garden bed with space for more beds. The house has beautiful street appeal, with designer retained gardens populated with plenty of flowering natives, fruiting citrus and birds galore, the custom shade structure over the driveway is both functional and attractive to look at. The garden is low maintenance with beautiful lawns all on fully automated computerized irrigation. At a glance inclusions: - 4 bedrooms, fans and air conditioned, 3 with built in robes - Semi-open plan living kitchen dining areas - Large carpeted family room - Air conditioned throughout - Ceiling fans throughout - Miele appliances in kitchen (wall oven, dishwasher, induction cooktop) - *Optional Mitsubishi Electric 564L LX Series French Door Fridge-Freezer with ice maker (not plumbed style) - 2-bay garage with remote panel door, plus covered parking for 2 more cars or boat - Custom shade structure over driveway - Two garden lockers - A larger 5 x 3m shed out the back for your tools and work area. - 3 x 1m potting shed - *Optional 3 x 1m raised veggie garden bed & optional suspended shelving in pergola - Established gardens with automated irrigation - Crimsafe windows and doors throughout - Termite barrier protection.
Location
Address
11 Saint Clements Close, Telina QLD 4680
City
Telina
Features and Finishes
None
Legal Notice
Our comprehensive database is populated by our meticulous research and analysis of public data. MirrorRealEstate strives for accuracy and we make every effort to verify the information. However, MirrorRealEstate is not liable for the use or misuse of the site's information. The information displayed on MirrorRealEstate.com is for reference only.