11 Short Street, Grenfell NSW 2810
Property Details
House
Description
Property Details: • Type: House
• Bedrooms: 0 • Bathrooms: 0
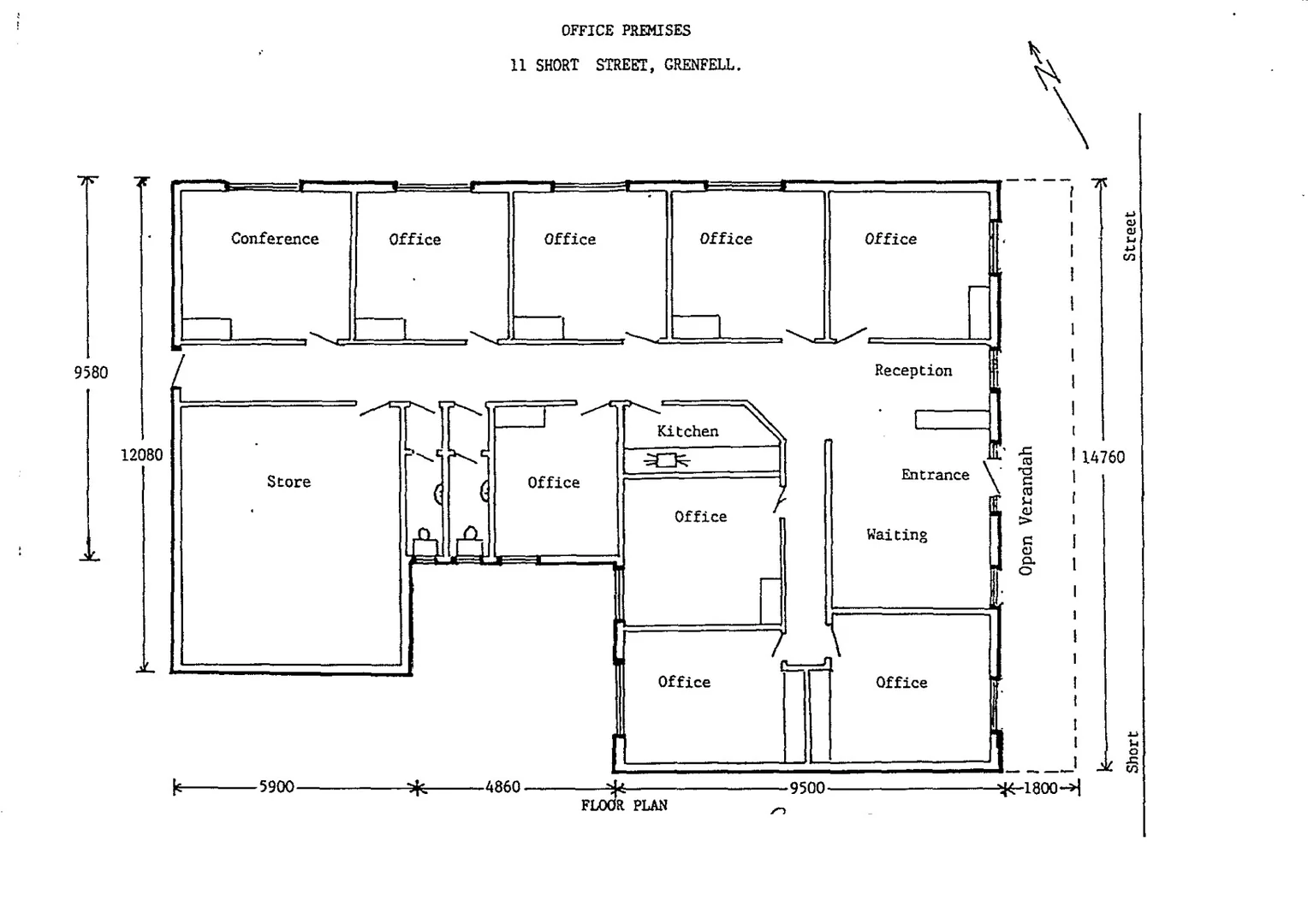
Description: Raine & Horne Young & Grenfell is pleased to present 11 Short Street, Grenfell, NSW 2810-a prime, fully leased commercial property that's perfect for astute investors! Property Features: • Leased Office Space: Comprising 9 offices (each with built in storage), a spacious reception area, kitchen, male and female toilets, and a well-equipped conference room. • Secure Lease: Currently leased for 3 years (expiring June 2027), with an additional 3-year option available. CPI adjustment included at the end of each year. • Strong Returns: Generating a solid income of $500 plus GST per week, offering a robust annual return. • Land Area: Spanning 586.7 sqm, providing ample space for business operations. • Prime Location: Just a short stroll to the CBD, ensuring excellent visibility and accessibility for clients and visitors. • Ample Street Parking: Convenient parking options available for staff and clients. • Comfort Features: Equipped with reverse cycle air conditioning for year-round comfort. This is a fantastic opportunity to secure a fully leased investment in a growing area. Act now! Contact us today for more information and to view the attached building plan. Don't let this opportunity pass you by!
Location
Address
11 Short Street, Grenfell NSW 2810
City
Grenfell
Features and Finishes
None
Legal Notice
Our comprehensive database is populated by our meticulous research and analysis of public data. MirrorRealEstate strives for accuracy and we make every effort to verify the information. However, MirrorRealEstate is not liable for the use or misuse of the site's information. The information displayed on MirrorRealEstate.com is for reference only.