11 Tanika Street, Gables NSW 2765
Property Details
5
2
House
Description
Property Details: • Type: House
• Bedrooms: 5 • Bathrooms: 2
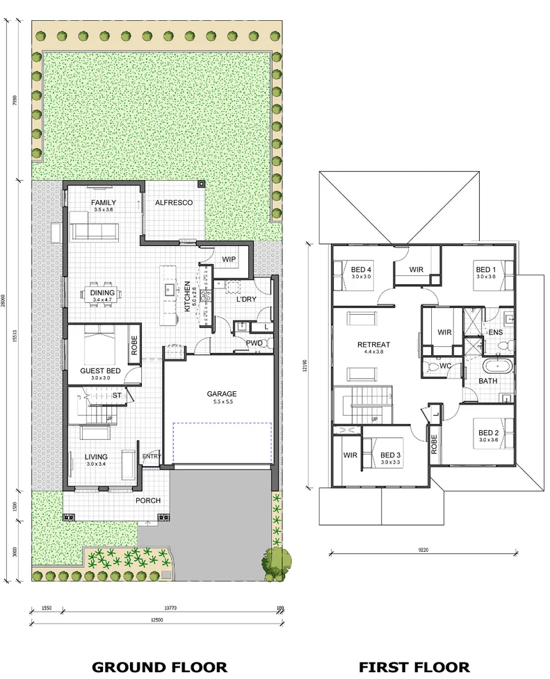
Description: Positioned in the sought-after suburb of Gables, this brand new, architecturally designed five-bedroom residence offers the perfect blend of space, style, and modern functionality. The home is thoughtfully laid out across two expansive levels, providing versatile living for growing families. The ground floor boasts a spacious open-plan design, seamlessly integrating the living and dining areas with a beautifully appointed kitchen featuring a walk-in pantry, island bench, and premium appliances. Large glass sliding doors open to an alfresco entertaining area and a fully landscaped backyard, perfect for indoor-outdoor living. Upstairs, a rumpus room provides additional space for relaxation or family entertainment. The master suite offers a private retreat complete with a luxurious ensuite and walk-in robe, while three further bedrooms-each with their own walk-in robes-share a well-appointed family bathroom. Key Features: • Beautifully landscaped exterior and spacious backyard • Ground floor bedroom ideal for guests, in-laws, or a home office. • Light-filled open-plan living and dining area, perfect for entertaining • Gourmet kitchen with walk-in pantry, island bench, and quality appliances • Master suite with ensuite and walk-in robe for ultimate comfort • Three additional bedrooms upstairs, all with walk-in robes • Second-floor rumpus room, ideal for a children's play area or media zone • Third toilet. • Double garage with internal access and additional driveway parking • Stylish alfresco area perfect for year-round outdoor living This is a rare opportunity to secure a high-quality home in a thriving community with easy access to schools, parks, shopping, and transport.
Location
Address
11 Tanika Street, Gables NSW 2765
City
Gables
Features and Finishes
None
Legal Notice
Our comprehensive database is populated by our meticulous research and analysis of public data. MirrorRealEstate strives for accuracy and we make every effort to verify the information. However, MirrorRealEstate is not liable for the use or misuse of the site's information. The information displayed on MirrorRealEstate.com is for reference only.