110/112 Chorley New Road, Heaton
Property Details
8
4
Detached
Description
Property Details: • Type: Detached • Tenure: N/A • Floor Area: N/A
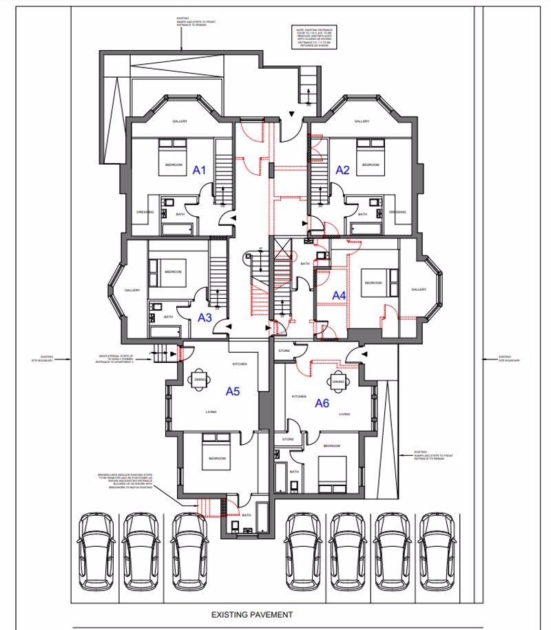
Key Features: • CALLING ALL BUILDERS & DEVELOPERS • Excellent Development Opportunity in Sought After Heaton Location • Planning Approved for 14 Apartments • 9,500 sq ft Over 4 Floor, On Site Parking & Lift Already Installed • Currently Pair of Victorian Semi-Detached Homes - Formerly a Nursing Home • Full Renovation Work Required • No Chain & Vacant Possession • Close to Amenities, Town Centre, University & Travel Links
Location: • Nearest Station: N/A • Distance to Station: N/A
Agent Information: • Address: 29 Lee Lane Horwich BL6 7AY
Full Description: **CALLING ALL BUILDERS & DEVELOPERS**
**9,500 sq ft Property with Planning for 14 Apartments!!**
Full Renovation Required - Sought After Heaton Location - No Chain - Ideal BTL Build - AVAILABLE NOW
A unique opportunity to undertake an excellent development opportunity in the heart of Bolton. A prominent pair of Victorian semi-detached homes ideally located opposite Bolton School on the busy commercial and residential area of Chorley New Road. The site has been most recently used as a nursing home and benefits from accommodation spread across four floors and also includes a lift to all floors. The property boasts internal area of over 9,500 sq ft and is in a state of disrepair with full renovation is required.
The owner has achieved planning permission for 14 spacious apartments with on site parking ideally as a BTL build and would prove popular for young professionals or students with the hope of achieving at least £550PCM per unit. There are more details for the planning found on Bolton Council Website with Planning Application Number - 10286/2.
Sites of this size with the potential and planning approved rarely come on the market for sale. All enquiries please contact Regency Estates.BrochuresFull Details
Location
Address
110/112 Chorley New Road, Heaton
City
Bolton
Features and Finishes
CALLING ALL BUILDERS & DEVELOPERS, Excellent Development Opportunity in Sought After Heaton Location, Planning Approved for 14 Apartments, 9,500 sq ft Over 4 Floor, On Site Parking & Lift Already Installed, Currently Pair of Victorian Semi-Detached Homes - Formerly a Nursing Home, Full Renovation Work Required, No Chain & Vacant Possession, Close to Amenities, Town Centre, University & Travel Links
Legal Notice
Our comprehensive database is populated by our meticulous research and analysis of public data. MirrorRealEstate strives for accuracy and we make every effort to verify the information. However, MirrorRealEstate is not liable for the use or misuse of the site's information. The information displayed on MirrorRealEstate.com is for reference only.