1113 Brock Street
Property Details
3
1
Tenant
Description
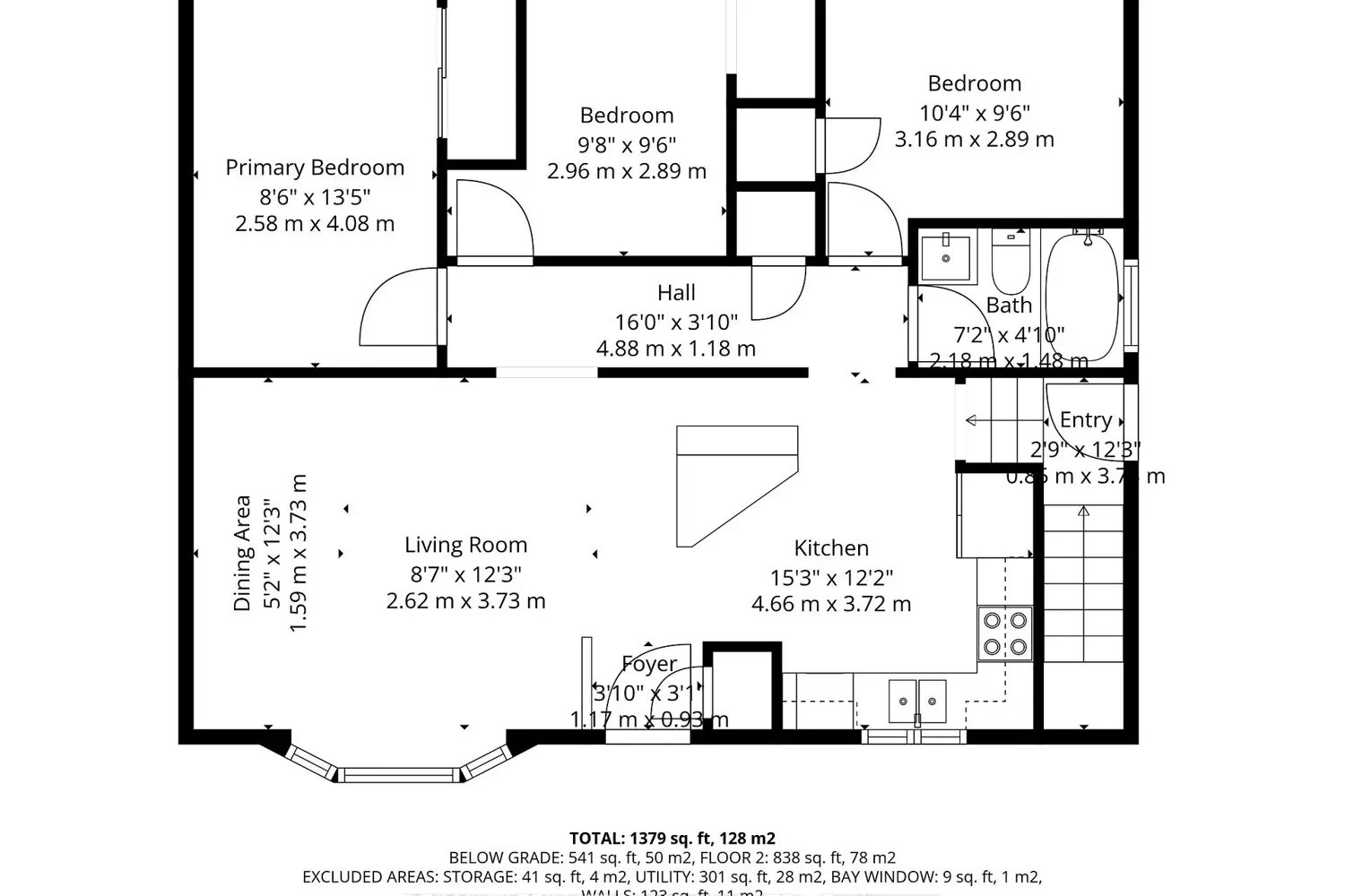
All brick bungalow offering three bedrooms, one with patio doors leading to a raised two-tier deck overlooking a fully fenced and private backyard. The open-concept kitchen provides ample cupboard and counter space along with a unique triangular island featuring a breakfast bar, and includes fridge, stove, dishwasher, and microwave. Luxury vinyl flooring flows through the kitchen, living room, and hallways, complementing the bright living room with bay window. The main level features a newly updated 4pc bath. The finished basement adds a spacious recreation room warmed by a natural gas stove, plus utility and laundry rooms with washer included. Exterior highlights include tasteful landscaping, interlocked brick driveway, front walkway, and storage shed. Updates include all windows and entry doors, roof (2010), and gas furnace & AC (2019). Centrally located close to all amenities, shopping, schools, parks, and bus routes all within a short walk. Executor require 48-hour irrevocable on all offers.
Location
Address
1113 Brock Street
City
Dallas
Features and Finishes
None
Legal Notice
Our comprehensive database is populated by our meticulous research and analysis of public data. MirrorRealEstate strives for accuracy and we make every effort to verify the information. However, MirrorRealEstate is not liable for the use or misuse of the site's information. The information displayed on MirrorRealEstate.com is for reference only.