113 Ridge Square, Leppington NSW 2179
Property Details
9
4
Acreage / Semi-rural
Description
Property Details: • Type: Acreage / Semi-rural
• Bedrooms: 9 • Bathrooms: 4
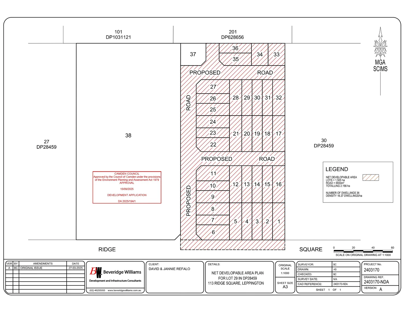
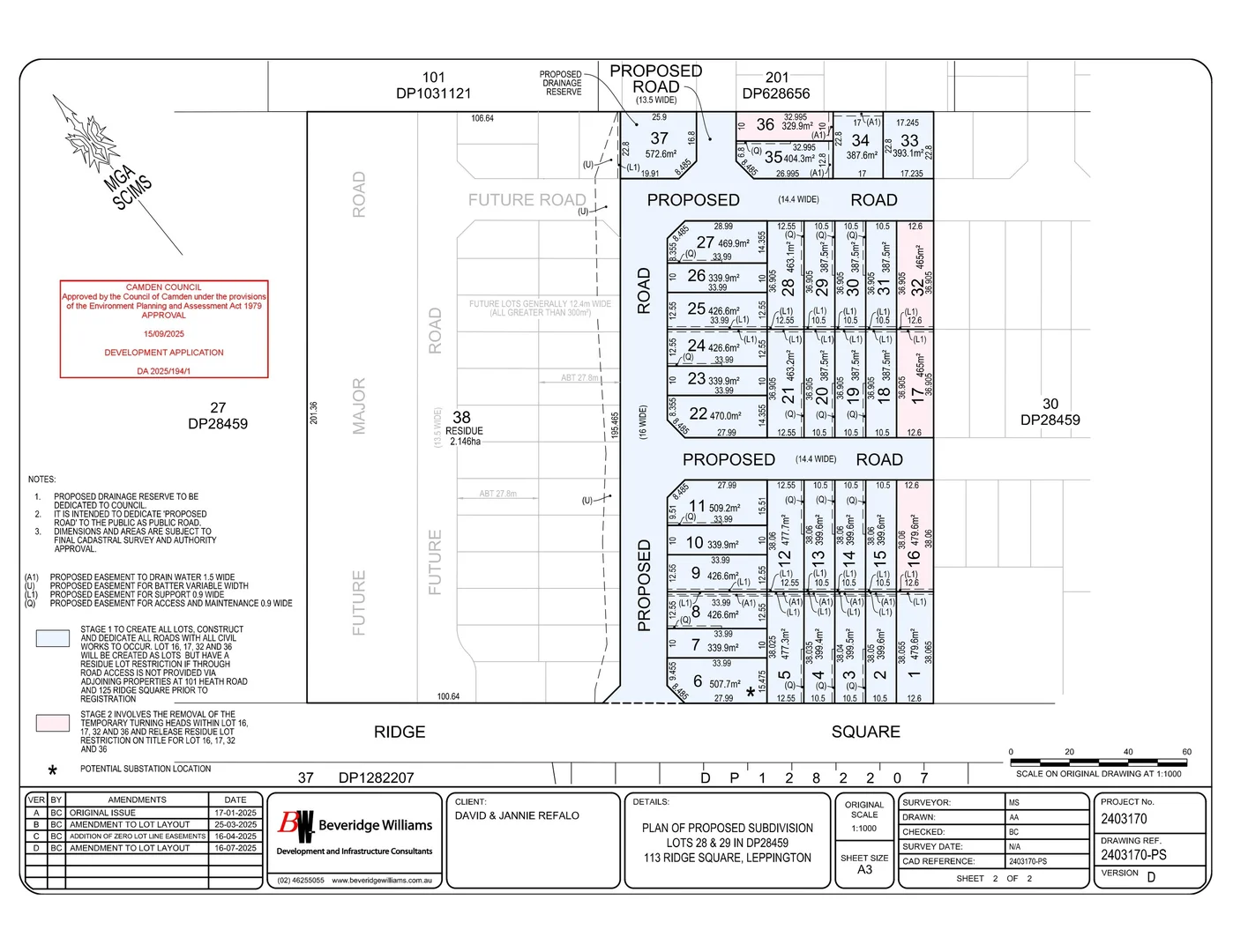
Description: A development opportunity of this calibre is a rare find. DA-approved for a 37-lot subdivision, this prime parcel in Sydney's booming south-west is ready for the next developer to step in and bring it to life. Set within the South West Growth Area, the site is zoned R2 Low Density Residential and already features two dwellings providing holding income. Infrastructure in the area is accelerating rapidly, with the new Western Sydney Airport, the future Leppington Town Centre, and major motorway connections all shaping this pocket into a key urban hub. The proposed subdivision offers strong buyer appeal not only because of major infrastructure investment but also because of its position within a high-growth corridor, where surrounding developments are transforming the area into an increasingly sought-after residential destination. With demand rising and buyer confidence strong, this site is primed for both immediate and long-term returns. Whether you're ready to build or looking to landbank, it's an exceptional opportunity to secure a foothold in one of Sydney's most future-focused locations. Features: DA approved for 37 lot subdivision with holding income - Zoned R2 Low-Density Residential, ready to go - Two existing homes providing income now - Only 30-min drive to the future Western Sydney International Airport - Approx. 5-min to Leppington Train Station and only 20 mins to Campbelltown - Excellent access to M5, M7 and future M12 motorways - Walking distance to future T-way bus service - Positioned in a high growth corridor with strong demand - Ideal for immediate build or long term landbank investment - DA-approval documentation available by request Contact your friendly Cutcliffe agent to arrange an inspection today.
Location
Address
113 Ridge Square, Leppington NSW 2179
City
Leppington
Features and Finishes
None
Legal Notice
Our comprehensive database is populated by our meticulous research and analysis of public data. MirrorRealEstate strives for accuracy and we make every effort to verify the information. However, MirrorRealEstate is not liable for the use or misuse of the site's information. The information displayed on MirrorRealEstate.com is for reference only.