114 Priests Ridge Road, Cedar Brush Creek NSW 2259
Property Details
2
2
Acreage / Semi-rural
Description
Property Details: • Type: Acreage / Semi-rural
• Bedrooms: 2 • Bathrooms: 2
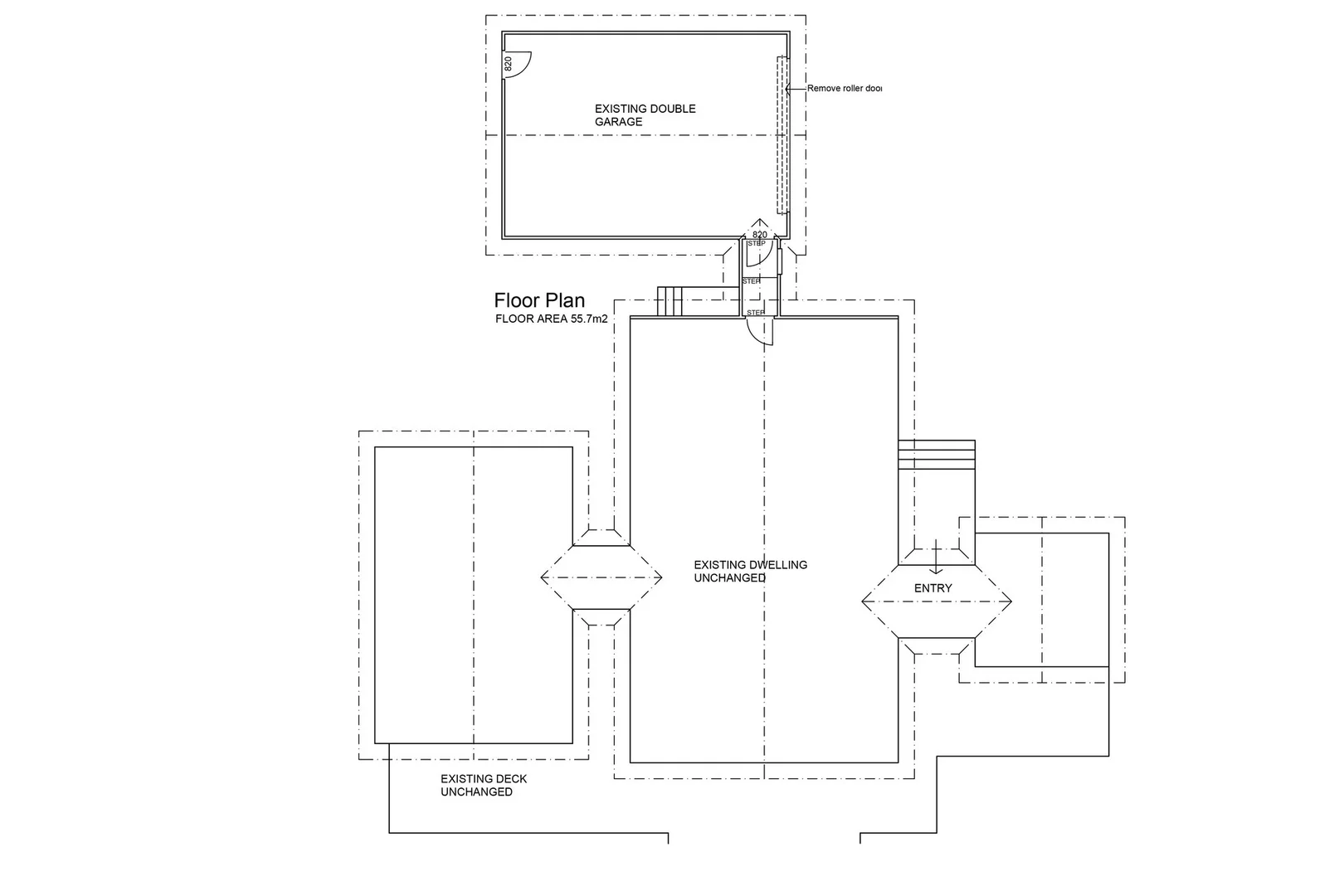
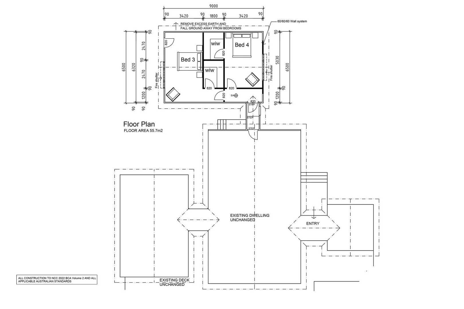
Description: Set high in the picturesque Yarramalong Valley, this architect-designed haven offers 115 acres (46.82 hectares) of pristine natural bushland within the tightly held enclave of Cedar Brush Creek. Delivering complete privacy, breathtaking panoramic views and a seamless connection to nature, this is a rare lifestyle opportunity of exceptional calibre. Thoughtfully designed with a low-impact footprint, the residence comprises three contemporary pavilions connected by louvred breezeways, allowing natural light and airflow to enhance the living environment. Expansive glazing and a full-length timber deck with a sunlit northerly aspect capture sweeping views across rolling countryside, valleys and distant mountain ranges. The central pavilion showcases open-plan living and dining, complemented by polished forest red gum timber flooring, a combustion fireplace and a well-appointed granite kitchen with quality appliances. Two generously sized bedrooms are positioned in separate pavilions, each with direct access to the deck, while the master suite features a walk-in robe and a luxurious ensuite with underfloor heating. Surrounding the home are approximately five cleared and fully fenced acres with established, manicured gardens, while the balance of the property remains a natural bushland sanctuary rich in native flora and fauna. Enjoy abundant wildlife including wallabies, wombats and diverse birdlife, along with kilometres of private bush trails. Professionally designed plans offer a minimal cost, straightforward conversion of the oversized garage into two additional bedrooms, creating a spacious four-bedroom home, with plans available and displayed within the marketing photographs. Property Highlights: 115 acres (46.82 ha) of natural bushland with panoramic valley views Sought-after Cedar Brush Creek location backing onto Olney State Forest Architect-designed residence with three pavilions and breezeway connections Full-length northerly timber deck ideal for entertaining Light-filled interiors with ducted air conditioning and combustion fireplace Stylish granite kitchen with quality appliances, underfloor heating to bathrooms Oversized double garage with conversion potential to 4 bedroom home (see attached plans in photographs) Connected to mains power, with 3-phase power, 6.6kW solar system and approx. 117,000L water storage Approx. five cleared, usable acres with landscaped surrounds 5 minutes to Yarramalong Village café and restaurant 10 minutes to Kulnura amenities including general store, post office and fuel Approximately 20 minutes to Tuggerah Westfield and the M1; under 1 hour to Wahroonga This exceptional retreat offers a rare balance of seclusion, sustainability and convenience in one of the Central Coast's most sought-after hinterland locations. Contact Shaun Coffey on 0417 400 556 to arrange your private inspection. DISCLAIMER: This advertisement contains information provided by third parties. While all care is taken to ensure otherwise Elders Coast and Country, does not make any representation as to the accuracy of any of the information contained in the advertisement, does not accept any responsibility or liability and recommends that any client make their own investigations and enquiries. All images are indicative of the property only.
Location
Address
114 Priests Ridge Road, Cedar Brush Creek NSW 2259
City
Cedar Brush Creek
Legal Notice
Our comprehensive database is populated by our meticulous research and analysis of public data. MirrorRealEstate strives for accuracy and we make every effort to verify the information. However, MirrorRealEstate is not liable for the use or misuse of the site's information. The information displayed on MirrorRealEstate.com is for reference only.