115-129 Railway Avenue, Bundanoon NSW 2578
Property Details
13
5
House
Description
Property Details: • Type: House
• Bedrooms: 13 • Bathrooms: 5
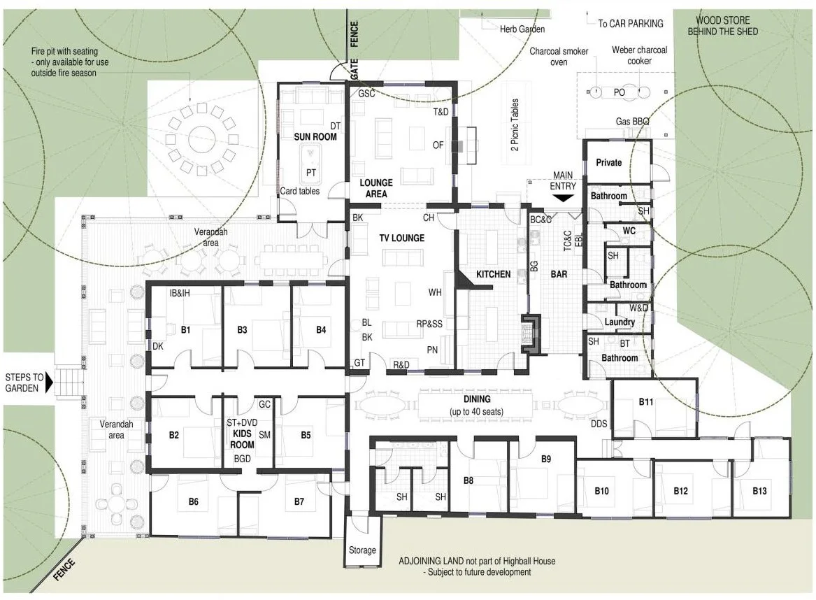
Description: Tucked away in one of Bundanoon's most picturesque pockets, Lynbrook is a captivating Southern Highlands property brimming with character, history & opportunity. Set on a generous parcel of land framed by mature trees & rambling gardens, this quintessential country home invites a new custodian to write its next chapter. Steeped in Bundanoon's village history, Lynbrook captures the essence of old-world charm. From its high ceilings & timber floors to its wide verandahs & cosy fireplace. Period details have been lovingly preserved, creating a home that radiates warmth & nostalgia while offering endless scope for transformation. With solid bones & a flexible floorplan, Lynbrook provides an inspiring canvas for renovation, restoration, or reinvention. Whether you envision a refined Highlands retreat, boutique guest accommodation, or a family residence with modern updates, the possibilities are vast & rewarding. The grounds are equally enchanting. Established gardens, sunlit lawns & quiet corners offer space for outdoor entertaining, a kitchen garden or even additional structures. Its prime Bundanoon location ensures easy access to the village centre, local cafés, shops & rail connections, while still enjoying the peace & privacy of a true country setting. This is a rare opportunity to secure a property that blends historic allure with genuine development potential. A Highlands classic, ready to be revived, reimagined & loved for generations to come. ________________________________________ Key Features • Character-filled original residence on a large, level block • Retained period details including timber flooring, fireplaces & verandahs • Generous living areas & flexible floorplan ripe for renovation • Expansive gardens with established trees & open space for expansion • Excellent location within walking distance to Bundanoon village & transport • Ideal opportunity for restoration, investment, or boutique accommodation project ________________________________________ The Potential • Renovate & restore to create a refined country residence- with DA approval for alterations & additions • Development approval for a 9 lot residential subdivision with 8 lots from 700m2 & a substantial homestead on 3,860m2 • Extend or rebuild to design your dream Highlands estate with council approvals already in place • Landbank & hold, capitalising on Bundanoon's growing popularity & village transformation with a strong current income as a boutique guesthouse for large groups • Subdivide & maximise potential For further information & insight into what Lynbrook offers visit the website lynbrook.net.au or contact Matthew Anstee 0400 555 088 [email protected]
Location
Address
115-129 Railway Avenue, Bundanoon NSW 2578
City
Bundanoon
Features and Finishes
None
Legal Notice
Our comprehensive database is populated by our meticulous research and analysis of public data. MirrorRealEstate strives for accuracy and we make every effort to verify the information. However, MirrorRealEstate is not liable for the use or misuse of the site's information. The information displayed on MirrorRealEstate.com is for reference only.