117 St. James's Street, Burnley, Lancashire

GBP 0 For Sale

Property Details

Property Type

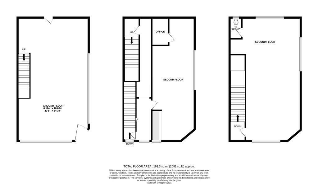
1,576 sq ft

Description

*** PRICE ON APPLICATION ***

Property Details: • Type: 1,576 sq ft • Tenure: N/A • Floor Area: N/A

Key Features: • Prime town centre location adjacent to Marks and Spencer's and close to Charter Walk Shopping Centre. • Recently refurbished with new suspended ceilings to the ground floor and LED lighting throughout. • Attractive stone built property with return frontage onto St James Street with modern aluminum shop front. • Three storey property with spacious, open plan sales area to the ground floor and an additional office and storage to the upper floors.

Location: • Nearest Station: Burnley Central Station • Distance to Station: 0.3 miles

Agent Information: • Address: SUITE 125b Empire Business Centre 2 Empire way off Liverpool Road Burnley BB12 6HH

Full Description: An attractive stone built property occupying a prominent corner position at the junction of St James Street and Bethesda Street. The accommodation is arranged over three floors, comprising an open plan sales area to the ground floor, an office and store room to the first floor and an additional store room and WC to the second floor. The property has undergone recent refurbishment, including a new suspended ceiling to the ground floor and new LED lighting throughout.Ideal for retail or office use, the property may also suit hair and beauty, aesthetics or cafe uses.The property occupies a prominent corner position facing St James Street, adjacent to Marks and Spencer's, Charter Walk Shopping Centre and within a short distance from the new Pioneer Place Cinema and Leisure development. Located in the heart of Burnley town centre, there are a number of established businesses in close proximity including, Next, Pandora, Primark, Nando's, various banks and independent retailers.Ground floorGross frontage 5.99 sq.m 19' 6"Internal width 5.63 m 18'4"Shop depth 10.64 m 34'8"Net internal 56.34 sq.m 606 sq.ftFirst floor net internalOffices 26.5 sq.m 285 sq.ft Second floor net internalStores 59.5 sq.m 640 sq.ftThe property has the benefit of mains electricity and water.It is the prospective purchaser / tenant's responsibility to verify that all appliances, services and systems are in working order, and are of adequate capacity and suitable for their purpose.It is the prospective Purchaser / Tenant's responsibility to verify that their intended use is acceptable to the local planning authority.To Rent : £15,000 per annum plus VAT.For Sale : Price on ApplicationThe property is available by way of a Full repairing and Insuring lease for a term to be agreed.Each party is responsible for their own legal costs.Prime town centre location adjacent to Marks and Spencer's and close to Charter Walk Shopping Centre.Recently refurbished with new suspended ceilings to the ground floor and LED lighting throughout. Attractive stone built property with return frontage onto St James Street with modern aluminum shop front. Three storey property with spacious, open plan sales area to the ground floor and an additional office and storage to the upper floors.

Location

Address

117 St. James's Street, Burnley, Lancashire

City

Burnley

Features and Finishes

Prime town centre location adjacent to Marks and Spencer's and close to Charter Walk Shopping Centre., Recently refurbished with new suspended ceilings to the ground floor and LED lighting throughout., Attractive stone built property with return frontage onto St James Street with modern aluminum shop front., Three storey property with spacious, open plan sales area to the ground floor and an additional office and storage to the upper floors.

Legal Notice

Our comprehensive database is populated by our meticulous research and analysis of public data. MirrorRealEstate strives for accuracy and we make every effort to verify the information. However, MirrorRealEstate is not liable for the use or misuse of the site's information. The information displayed on MirrorRealEstate.com is for reference only.

Real Estate Broker
Petty Commercial, Lancashire
Brokerage
Petty Commercial, Lancashire
Top Tags
Likes

0

Views

122

This website uses cookies to ensure you get the best experience. Learn more