12 Lancewood Avenue, Heidelberg West VIC 3081
Property Details
2
1
House
Description
Property Details: • Type: House
• Bedrooms: 2 • Bathrooms: 1
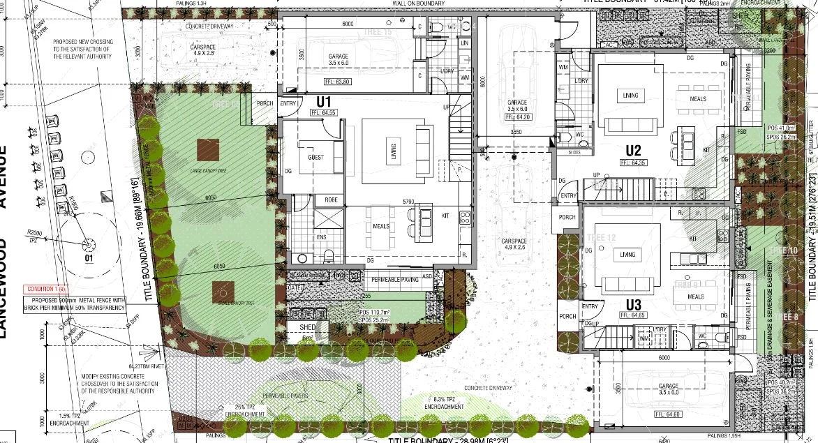
Description: Set on a generous 589m² allotment, this charming 2-bedroom home offers comfort today with exciting potential for tomorrow. Whether you're a first-home buyer eager to enter the market, an investor seeking a reliable rental return, or a developer ready to act on approved plans and permits, this property delivers outstanding value. Inside, you'll find a practical floorplan with light-filled living spaces and well-proportioned bedrooms that create a warm and inviting atmosphere. The neat kitchen and bathroom offer immediate functionality, while also presenting an opportunity to update and add further value over time. The true highlight here lies in the future potential, the property comes complete with approved plans and permits for three dwellings: • Dwelling 1 - 18.8SQ 4 Bedroom, 3 Bathroom, Individual Driveway, Single Car Garage + Car Space • Dwelling 2 - 16.1SQ 3 Bedroom, 2 Bathroom, Single Car Garage + Car Space • Dwelling 3 - 13.5SQ 2 Bedroom, 2 Bathroom Single Car Garage This makes the property an exceptional opportunity for developers to capitalise immediately without the delays and costs of planning approval. Step outside and enjoy the expansive backyard, a blank canvas for entertaining, gardening, or future projects. With a land size of almost 600m², the scope here is enormous. Perfectly positioned in a thriving pocket of Heidelberg West, you're just moments from Northland Shopping Centre, La Trobe University, local parks, schools, and transport links. This location combines lifestyle ease with long-term growth, appealing to both home buyers and investors. Opportunities like this with approved plans, development potential, and lifestyle convenience are rarely offered.
Location
Address
12 Lancewood Avenue, Heidelberg West VIC 3081
City
Heidelberg West
Features and Finishes
None
Legal Notice
Our comprehensive database is populated by our meticulous research and analysis of public data. MirrorRealEstate strives for accuracy and we make every effort to verify the information. However, MirrorRealEstate is not liable for the use or misuse of the site's information. The information displayed on MirrorRealEstate.com is for reference only.