12 Tekapo Street, Truganina VIC 3029
Property Details
4
2
House
Description
Property Details: • Type: House
• Bedrooms: 4 • Bathrooms: 2
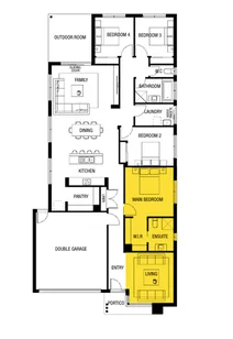
Description: This beautifully presented residence combines space, style, and practicality, making it perfect for families or professionals seeking a modern, comfortable lifestyle. Designed with quality finishes and generous proportions, the home blends functionality with contemporary appeal. • Four Spacious Bedrooms: The master suite is a private retreat, complete with ensuite and generous wardrobe space. Additional bedrooms feature built-in robes and are serviced by a centrally located bathroom with modern fittings. • Open-Plan Living: The heart of the home is a light-filled open-plan living, dining, and kitchen area-perfect for everyday family life and entertaining. The modern kitchen features stone benchtops, quality appliances, sleek cabinetry, and a large pantry for effortless meal preparation. • Year-Round Comfort & Energy Efficiency: Enjoy comfort in every season with refrigerated heating and cooling, while solar panels help reduce energy costs and provide an environmentally friendly advantage. • Double Garage & Practical Living: A secure double garage with internal access offers convenience and extra storage. The well-appointed laundry and quality fixtures throughout further enhance the home's modern functionality. • Versatile & Light-Filled Spaces: Multiple living zones provide flexibility for family retreats, quiet study areas, or entertaining guests. Large windows throughout create a bright, airy atmosphere. • Low-Maintenance Outdoor Area: The outdoor space is designed for easy care, ideal for relaxing or entertaining without the hassle of extensive upkeep. With its open-plan design, modern finishes, energy-efficient features, and secure double garage, this home offers an outstanding opportunity for comfortable, convenient, and stylish living. Property Dimensions: • Master Bedroom - 3.47m x 3.94m • Bedroom 2 - 4.16m x 3.05m • Bedroom 3 - 3.00m x 3.03m • Bedroom 4 - 3.02m x 3.03m • Dining Room - 5.22m x 3.21m • Family Room - 5.22m x 3.36m • Living Room - 3.69m x 3.84m • Outdoor Room - 3.36m x3.72m • Double Garage - 5.51m x 6.00m Don't miss out - contact Ray White Truganina today to arrange your private inspection! **** IMPORTANT! REGISTER TO INSPECT PROPERTIES **** By registering your details you will be INSTANTLY informed of any updates, changes, or cancellations for your property appointment. Photo ID Required at all inspections. DISCLAIMER: All stated dimensions are approximate only. Particulars given are for general information only and do not constitute any representation on the part of the Rental Provider or agent. Please note that the photos are for illustration purposes only.
Location
Address
12 Tekapo Street, Truganina VIC 3029
City
Truganina
Features and Finishes
None
Legal Notice
Our comprehensive database is populated by our meticulous research and analysis of public data. MirrorRealEstate strives for accuracy and we make every effort to verify the information. However, MirrorRealEstate is not liable for the use or misuse of the site's information. The information displayed on MirrorRealEstate.com is for reference only.