1213 Anzac Avenue, Kallangur QLD 4503
Property Details
3
1
House
Description
Property Details: • Type: House
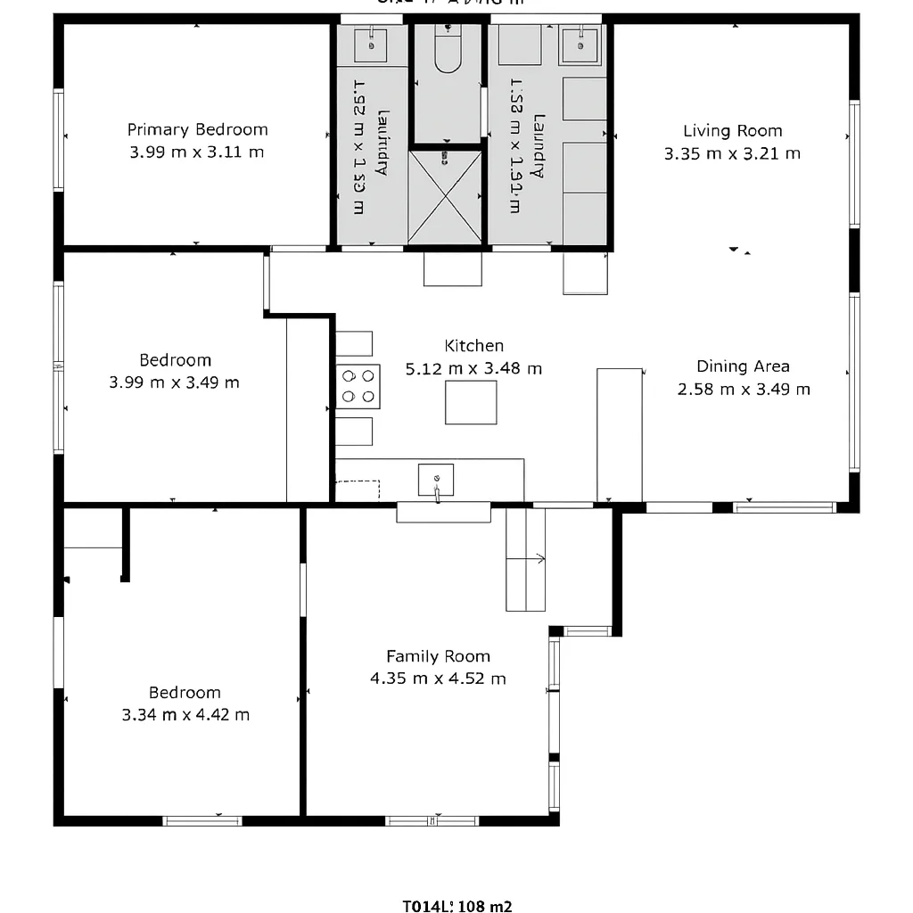
• Bedrooms: 3 • Bathrooms: 1
Description: Set in the heart of the rapidly evolving Kallangur/Petrie corridor, 1213 Anzac Avenue presents a rare chance to secure land in a location undergoing significant transformation. The existing dwelling is offered strictly in as is condition - the true value lies in the block, the position and the long term potential. Why Buyers Are Looking Here: With the University of the Sunshine Coast Petrie campus, Petrie Station's express line, The Mill redevelopment and the confirmed 2032 Olympics Indoor Sports Centre all within walking distance, this is one of Moreton Bay's strongest growth pockets. Land this close to major infrastructure is increasingly scarce. Who This Property Suits: • Investors & Land Bankers: Hold the land, generate income from the existing dwelling, and position yourself ahead of future zoning uplift. • Owner Occupiers: Clear the site and build a brand new home in a highly connected location. • Renovators: Restore the existing dwelling and convert it into a rental or value add project. Development Potential (MBRC Guidelines): • Multiple dwellings (townhouses / small unit complex) - STCA • Knockdown & build new • Long term land banking opportunity PLEASE NOTE: Subdivision (1 into 2 lots) is unlikely due to land size and frontage Location Highlights: • 1.3km walk to Petrie Station (approx. 17 mins) - express trains to Brisbane CBD • 1.6km walk to USC Petrie campus • 1.5km to The Mill - future 2032 Olympics Indoor Sports Centre • 3.9km to Bruce Highway (North Lakes junction) • 400m to Pine Rivers Kindergarten • 1.5km to Kallangur State School • 2.3km to Petrie State School Transparency You Can Trust: The owner is completing an independent building & pest inspection, with the full report available to all interested buyers in due course. A Strategic Opportunity: Whether you plan to build, hold or position yourself for future uplift, this address offers a compelling foundation for long term growth in one of Moreton Bay's most exciting corridors.
Location
Address
1213 Anzac Avenue, Kallangur QLD 4503
City
Kallangur
Features and Finishes
None
Legal Notice
Our comprehensive database is populated by our meticulous research and analysis of public data. MirrorRealEstate strives for accuracy and we make every effort to verify the information. However, MirrorRealEstate is not liable for the use or misuse of the site's information. The information displayed on MirrorRealEstate.com is for reference only.