1140 12th Street, Los Osos, CA 93402
Property Details
3
None
None
None
Description
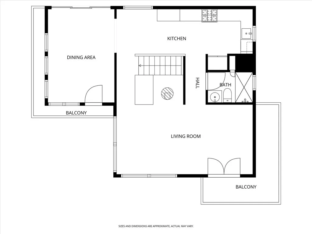
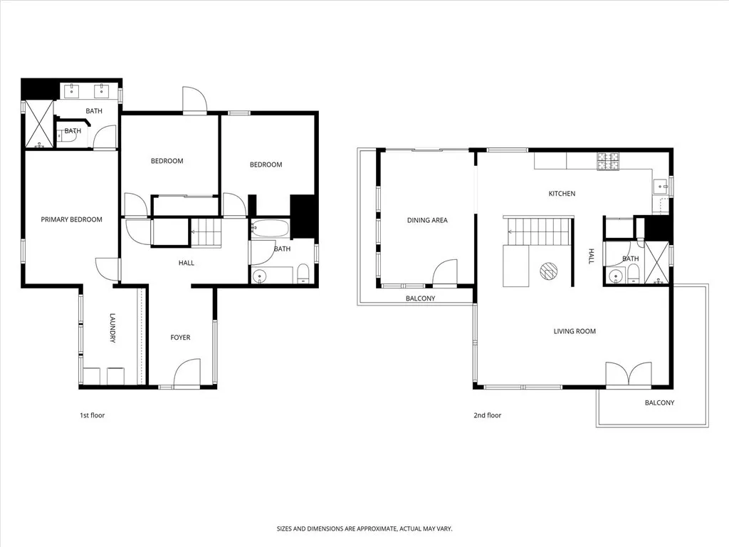
Discover this beautiful and unique modern home tucked away in a private, relaxing setting just 7 houses from the Elfin Forest and moments to Baywood Park. Thoughtfully designed, this home blends style with breathtaking natural surroundings. The wraparound balcony showcases sweeping views of the bay, Morro Rock, iconic Seven Sisters and spectacular sunsets. Inside, every room features beautiful exposed wood beam ceilings. Downstairs, the primary suite offers a spacious walk-in closet with laundry, shower, and custom double-sink vanity. There are also two guest bedrooms, one with access to the back yard, plus a separate 3/4 guest bathroom. Upstairs, the light-filled living room impresses with expansive windows, a freestanding fireplace, and French doors opening to the front balcony. The updated kitchen features black granite countertops, matching appliances and an adjoining spacious dining area with large viewing windows. There is a 3/4 guest bathroom for convenience. Outside, enjoy the large blank-space backyard ready for you to add your own personal touches and two convenient storage sheds. The front yard has planter boxes, a charming boardwalk walkway, carport and long driveway which provides extra parking . Located on a quiet cul-de-sac street, this one-of-a-kind coastal property offers privacy, beauty, and convenience.
PROPERTY DETAILS: Square Feet: 1810 | Bathrooms: 3
INTERIOR FEATURES: • Appliances: Dryer, Washer, Water Heater, Refrigerator, Range Hood, Gas Range, Dishwasher • Cooling: None • Heating: Gas Heat, Forced Air, Fireplace • Common Walls: No Common Walls • Fireplaces: Wood Burning, Living Room • Security: Carbon Monoxide Detector(s), Smoke Detector(s)
EXTERIOR FEATURES: • Parking: On Site, Carport, Asphalt, Driveway, Attached Garage Carport. • Pool Description: None • Spa: None • Lot View: Hill, Water • Additional Exterior/Lot Features: Shed(s) Cul-De-Sac, Back Yard
LISTING AGENT: Agent: Kathy Taverner | Office: BHGRE HAVEN PROPERTIES | Phone: 8052350437 | Email: [email protected]
LISTING INFORMATION: MLS#: SC26044731 | Status: FOR SALE
Location
Address
1140 12th Street
City
Los Osos
Features and Finishes
Interior Features:
• Appliances: Dryer, Washer, Water Heater, Refrigerator, Range Hood, Gas Range, Dishwasher
• Cooling: None
• Heating: Gas Heat, Forced Air, Fireplace
• Common Walls: No Common Walls
• Fireplaces: Wood Burning, Living Room
• Security: Carbon Monoxide Detector(s), Smoke Detector(s)
Exterior Features:
• Parking: On Site, Carport, Asphalt, Driveway, Attached Garage Carport.
• Pool Description: None
• Spa: None
• Lot View: Hill, Water
• Additional Exterior/Lot Features: Shed(s) Cul-De-Sac, Back Yard
Legal Notice
Our comprehensive database is populated by our meticulous research and analysis of public data. MirrorRealEstate strives for accuracy and we make every effort to verify the information. However, MirrorRealEstate is not liable for the use or misuse of the site's information. The information displayed on MirrorRealEstate.com is for reference only.