1217 Lambeth Road
Property Details
4
3
Owner
Description
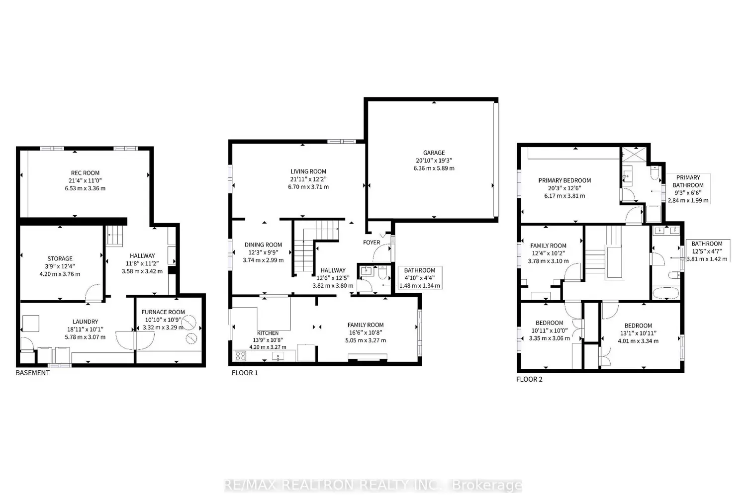
Welcome to 1217 Lambeth Rd... a beautifully updated 4-bedroom, 3-bathroom detached home on a quiet, highly desirable street in Oakville's sought-after Falgarwood community! Surrounded by mature trees and just steps from the scenic Morrison Valley Trail System, this home offers the perfect balance of nature and convenience. With approximately 2,811 sq ft of total living space-featuring 1,966 sq ft above grade plus a finished basement of about 845 sq ft-this home offers outstanding space for growing families. Recent upgrades include new hardwood floors in the living, dining, and family rooms (2023), a stylish new kitchen with modern cabinetry and stainless-steel appliances (2023), updated bathrooms (2023), new front door (2023), epoxy-finished garage (2023), and a newer roof (2021). The main floor boasts a spacious layout with a cozy family room featuring a fireplace, a bright living and dining area perfect for entertaining, and a chef's kitchen with a large island and walkout to the backyard. Upstairs, four comfortable bedrooms provide plenty of space for family living. The finished basement adds versatility for a recreation area or home office. The oversized backyard offers endless possibilities... a pool, playground, or your own private retreat. Double-car garage and driveway parking for 4 cars. Located minutes to top-rated schools, GO Station, shopping, and parks... this is the perfect home for families seeking comfort, convenience, and a welcoming Oakville lifestyle.
Location
Address
1217 Lambeth Road
City
Oakville
Features and Finishes
None
Legal Notice
Our comprehensive database is populated by our meticulous research and analysis of public data. MirrorRealEstate strives for accuracy and we make every effort to verify the information. However, MirrorRealEstate is not liable for the use or misuse of the site's information. The information displayed on MirrorRealEstate.com is for reference only.