123 Telford Street, Yarrawonga VIC 3730
Property Details
3
1
House
Description
Property Details: • Type: House
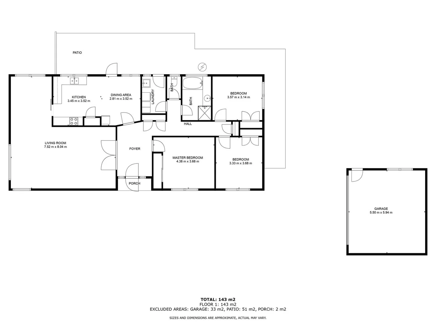
• Bedrooms: 3 • Bathrooms: 1
Description: Calling all first home buyers, investors, holidaymakers, and families this well-maintained brick home on a generous 773m² block (approx.) is a fantastic opportunity in the heart of Yarrawonga! From the moment you step inside, you're welcomed by a charming entrance foyer that offers privacy from the rest of the home. The spacious main living area boasts freshly laid carpet, great natural light, and a flexible layout that includes a designated dining or study nook perfect for modern family living. The kitchen is functional and well-appointed, featuring granite benchtops, ample storage, and an adjoining meals area with a ceiling fan for comfort. Property Features: Generous 773m² block (approx.) in a quiet, central location Three bedrooms, all with built-in robes and brand-new carpet Updated drapes in all bedrooms and the main living room Central bathroom: clean, white, and fresh with shower, bath, and vanity Spacious backyard with a private courtyard and loads of room for outdoor activities, entertaining, pets, or future improvements New carpet throughout, adding a fresh feel to the entire home Gas ducted heating and evaporative cooling for year-round comfort Garage and driveway parking New gutters recently installed Set within walking distance to Yarrawonga's schools, medical centre, shopping precinct, and the stunning Lake Mulwala this is a lifestyle location not to be missed. Whether you're looking to move straight in, secure a smart investment, or create the perfect family home, this is one not to miss. Enquire today to arrange your inspection!
Location
Address
123 Telford Street, Yarrawonga VIC 3730
City
Yarrawonga
Features and Finishes
None
Legal Notice
Our comprehensive database is populated by our meticulous research and analysis of public data. MirrorRealEstate strives for accuracy and we make every effort to verify the information. However, MirrorRealEstate is not liable for the use or misuse of the site's information. The information displayed on MirrorRealEstate.com is for reference only.