13-15 St Georges Avenue, Templestowe VIC 3106
Property Details
5
3
House
Description
Property Details: • Type: House
• Bedrooms: 5 • Bathrooms: 3
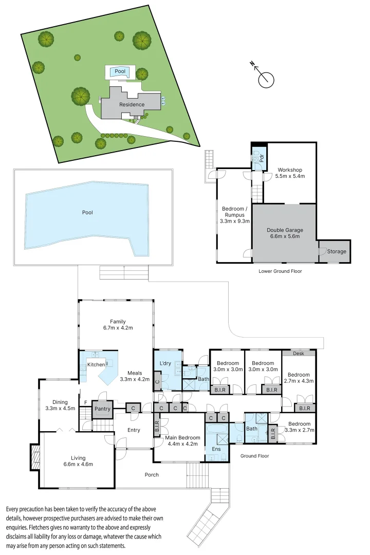
Description: **TO REGISTER FOR AN INSPECTION, SIMPLY CLICK ON BOOK INSPECTION, EMAIL AGENT or GET IN TOUCH** Tucked away in a quiet and tranquil pocket of Templestowe, this impressive family residence offers exceptional space, privacy and lifestyle appeal on a substantial allotment. A tree-lined driveway creates a welcoming first impression, leading to a light-filled home designed for effortless family living and entertaining. Thoughtfully designed, the home separates accommodation from living zones, providing both comfort and functionality for larger families. Comprising: - Five generous bedrooms with built-in robes - Flexible sixth bedroom or rumpus room ideal for multi-purpose living - Main bedroom with private ensuite - Two additional bathrooms, including one with bathtub - Separate toilet for added convenience - Multiple living, family and dining zones Kitchen & Living: - Well-equipped kitchen with dual Westinghouse ovens - Omega cooktop and dishwasher - Double sink and walk-in pantry - Seamless flow between living and entertaining spaces Additional Features Include: - Gas ducted heating and evaporative cooling - Split system air conditioning and ceiling fans - Gas hot water with infinity system - Separate laundry - Floorboards and tiles throughout - Three-phase electricity Outdoor Features: - Large solar-heated swimming pool - Expansive grounds offering privacy and space - Double garage with extended storage - Substantial workshop with powder room - Direct access to sixth bedroom/rumpus ideal for studio, gym or home office Location Highlights: - Close to Templestowe Village cafés and shops - Minutes to Westfield Doncaster - Near Ruffey Lake Park and Aquarena Leisure Centre - Convenient to Templestowe Heights Primary School and Templestowe College Offering space, versatility and a peaceful lifestyle setting, this exceptional home presents a rare opportunity in sought-after Templestowe. Please ensure that you REGISTER for inspections. Otherwise, you will not be notified of any changed to advertised inspection times. ADVERTISED INSPECTION TIMES displayed on this page are subject to cancellation or change. The first month's rent and bond are to be paid in absence by direct credit or bank cheque/s. Cash, personal or company cheques will not be accepted as payment. All future rental payments are monthly, in advance & via direct debit. Disclaimer: This advertisement has been prepared with the best endeavours to ensure the information contained in this advertisement is true and correct. We accept no responsibility and disclaim all liability in respect to any errors, omissions, inaccuracies or exclusions in tis material. Prospective Renters are encouraged to make their own enquiries to verify the information contained in this advertising material is true and correct.
Location
Address
13-15 St Georges Avenue, Templestowe VIC 3106
City
Templestowe
Features and Finishes
None
Legal Notice
Our comprehensive database is populated by our meticulous research and analysis of public data. MirrorRealEstate strives for accuracy and we make every effort to verify the information. However, MirrorRealEstate is not liable for the use or misuse of the site's information. The information displayed on MirrorRealEstate.com is for reference only.