1303/18 Waterview Walk, Docklands VIC 3008
Property Details
1
1
Apartment / Unit / Flat
Description
Property Details: • Type: Apartment / Unit / Flat
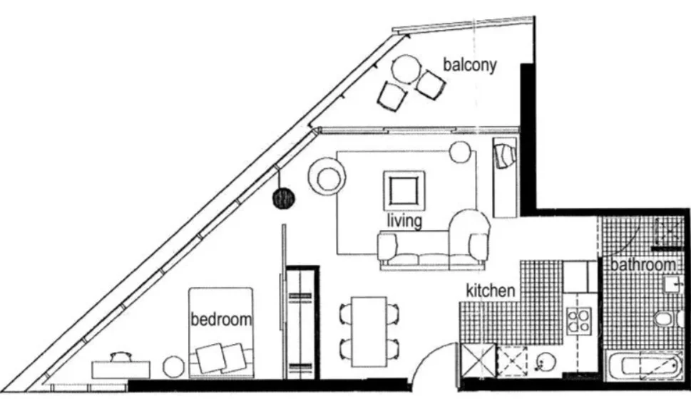
• Bedrooms: 1 • Bathrooms: 1
Description: Perfectly located in the Victoria Harbour Precinct, you have an endless choice of entertainment options: from the cafes and restaurants along Collins and Bourke Streets to the CBD, Crown Casino and Marvel Stadium. The Hub @ Docklands and Southern Cross Station are only a short walk away! This spacious one-bedroom apartment on level 13 features a generous-sized living area with balcony access in the Watergate residential complex. This East-facing position ensures an abundance of natural light throughout the day through expansive floor-to-ceiling windows! Additional features include: Modern kitchen with stainless steel appliances European laundry One secure car space AC/heating Intercom and secure entry Residents-only access to outdoor heated swimming pool, gymnasium, spa and sauna Whilst we have taken care in the preparation of the photos and description of the property, we recommend that applicants arrange their own enquiries and attend an inspection to confirm all aspects of the property. To apply please copy and paste the following link: https://our.property/9Uru
Location
Address
1303/18 Waterview Walk, Docklands VIC 3008
City
Docklands
Legal Notice
Our comprehensive database is populated by our meticulous research and analysis of public data. MirrorRealEstate strives for accuracy and we make every effort to verify the information. However, MirrorRealEstate is not liable for the use or misuse of the site's information. The information displayed on MirrorRealEstate.com is for reference only.