13123 Kennedy Highway, Ravenshoe QLD 4888
Property Details
3
3
Acreage / Semi-rural
Description
Property Details: • Type: Acreage / Semi-rural
• Bedrooms: 3 • Bathrooms: 3
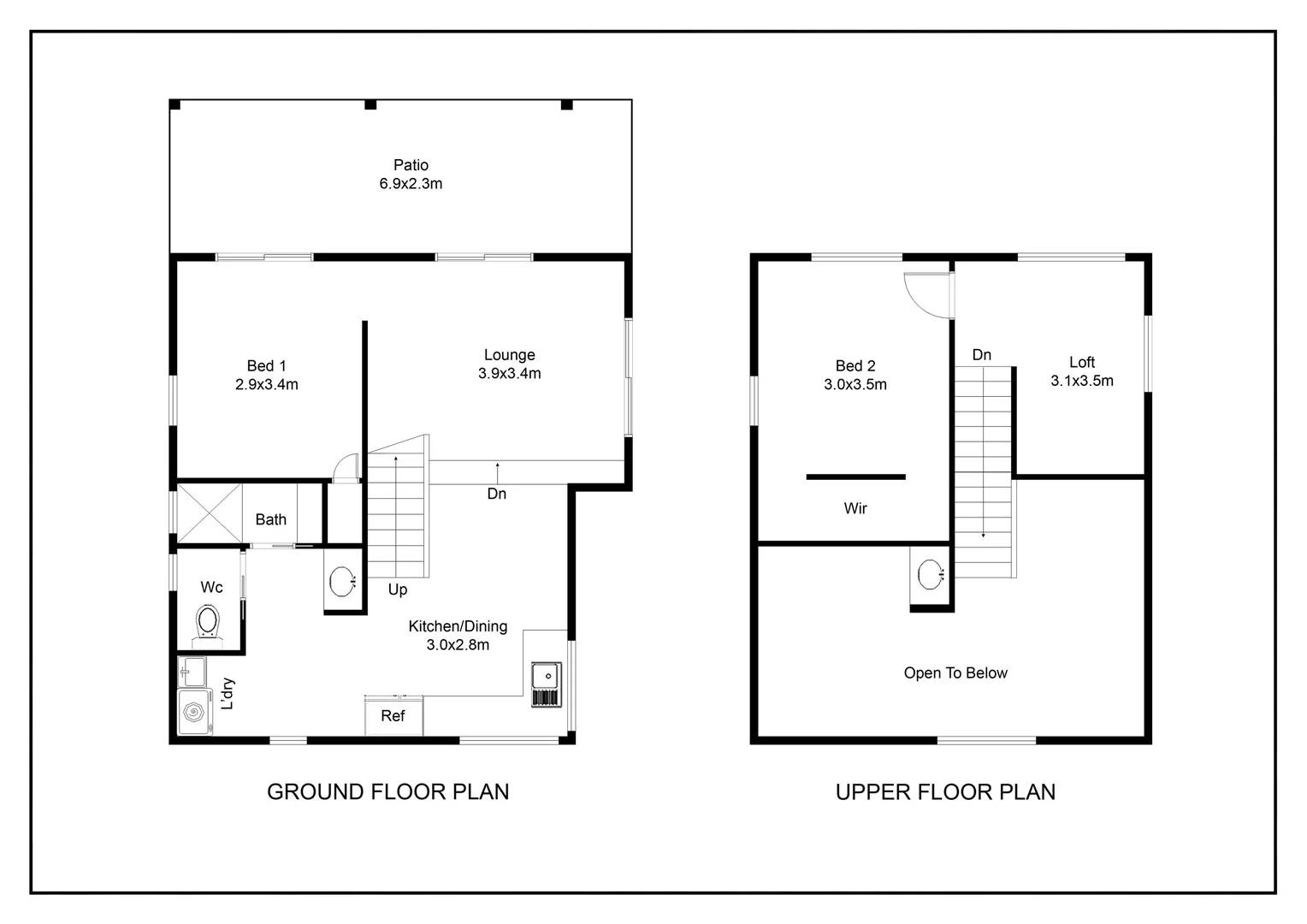
Description: 13123 Kennedy Highway is conveniently located on the outskirts of Ravenshoe, 5 mins from the township and is less than 45 minutes drive from Atherton. The architectural designed home is completely off grid and is a master design, incorporating a number of features for energy efficiency, taking full advantage of natural light, the simplicity of open plan living and several outdoor areas to enjoy the privacy of your own backyard. The private 125 acres is a unique parcel, having permanent water supplied by a natural spring fed creek and bordering South Cedar Creek. The infrastructure is nestled against the open forest and the Rose Gum timber that features throughout the house was sourced from the property. The established gardens have been professionally landscaped to entice the birds, bees and butterflies, using colourful natives. Features of this immaculate property include: Main Residence • Open plan kitchen, sunroom, media room, dining & lounge with two way fire place • Modern kitchen with stone bench tops, 900mm gas oven & cooktop, rangehood, 2 drawer dishwasher, walk in pantry • Huge internal laundry • Bathroom with separate shower, toilet and vanity • The whole second floor is devoted to the master suite and what an exceptional area this is - open plan with polished timber floors, master bedroom with private balcony, huge office area which also has access to the deck, be pampered in the spacious spa room, walk in shower with double shower heads, double vanity with stone bench tops and his & hers built in cabinetry shelving, huge walk in robe with unbelievable hanging, drawer and robe space • Tiled and screened throughout with raked ceilings & ceiling fans • Double carport • Outdoor entertaining area with outdoor shower connects the Second Residence, potential for Air BnB • Open plan kitchen, dining and lounge • Modern kitchen with stone bench tops with gas cooktop • Two bedrooms with polished timber floors & built in robes • Main bathroom with separate toilet, shower and vanity • Internal laundry • Outdoor patio • Tiled, screened and fans throughout Caretakers Cottage - The shed is fully insulated and lined with one bedroom, open plan kitchen, dining and lounge with wood heater and air-conditioning, bathroom and internal laundry. Single carport. 10m x 16m 3 phase powered machinery shed with concrete floor which houses the generator and solar panels, batteries and inverter. Lawn locker, chook run and veggie gardens. The two main water tanks are supplied spring water via the ram pump and shed tank collects rain water. This beautiful property has a remarkable stock carrying capacity due to the rich pastures and legumes and impeccable weight gain results. Call Nightingale Real Estate Tablelands Marketing Agent Shellie Nightingale to inspect this one, call 0429 966 038, you don't want to miss this one! We have obtained this property information from sources we believe to be reliable; however, we cannot guarantee its accuracy. Prospective buyers are advised to carry out their own investigations.
Location
Address
13123 Kennedy Highway, Ravenshoe QLD 4888
City
Ravenshoe
Features and Finishes
None
Legal Notice
Our comprehensive database is populated by our meticulous research and analysis of public data. MirrorRealEstate strives for accuracy and we make every effort to verify the information. However, MirrorRealEstate is not liable for the use or misuse of the site's information. The information displayed on MirrorRealEstate.com is for reference only.