1328 Plenty Road, Bundoora VIC 3083
Property Details
3
1
New Apartments / Off the Plan
Description
Property Details: • Type: New Apartments / Off the Plan
• Bedrooms: 3 • Bathrooms: 1
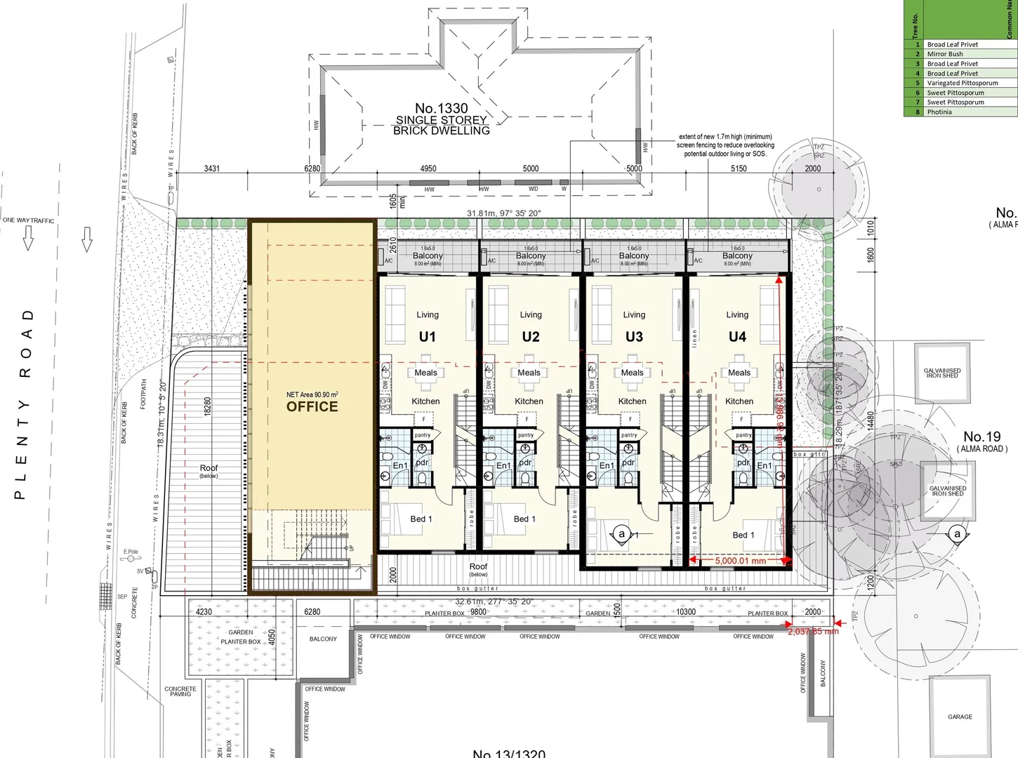
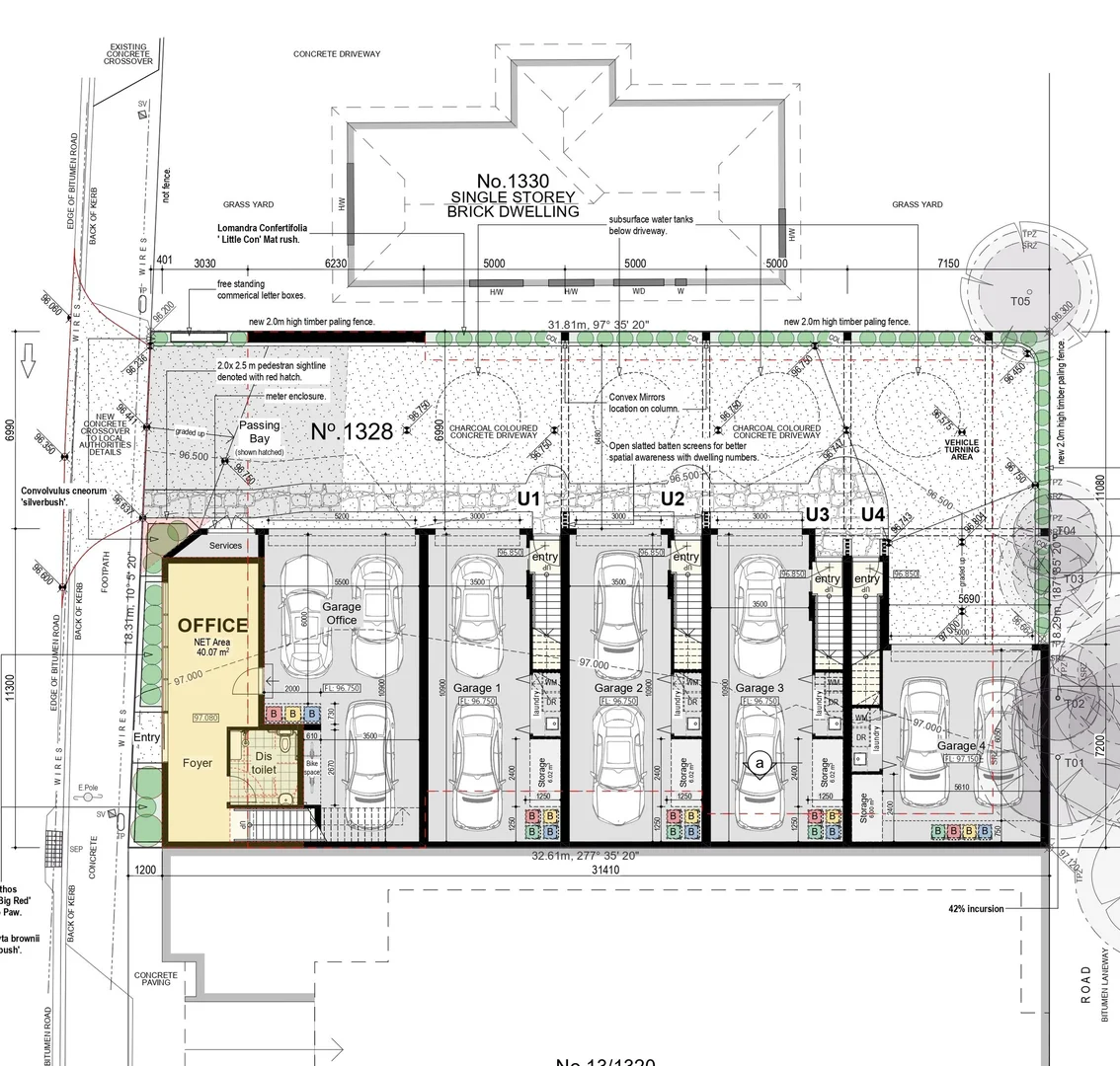
Description: An exceptional opportunity presents itself in the heart of Bundoora - a 593sqm (approx.) Commercial 1 Zoned allotment complete with an approved planning permits for a unique high-density mixed-use project. This versatile site offers developers and investors the chance to capitalise on a cost-efficient, well-planned design in one of the north's most connected and high-demand locations. Approved Development The approved permit features an intelligently designed mixed-use project comprising four contemporary townhouses and a front office space with outstanding Plenty Road frontage. Each townhouse offers four bedrooms with individual ensuites and a double garage, designed for modern, low-maintenance living. The office component includes three dedicated staff car spaces and is ideally suited for professional or commercial use. The proposed development has been carefully planned as a low-cost build, avoiding the need for basement works and incorporating light cladding materials for efficiency. Notably, the planning permit was issued prior to 1 May 2024, ensuring the project is exempt from the new National Construction Code (NCC) updates - saving substantial construction costs. Prime Location Ideally positioned with tram stop 86 directly at the doorstep, this property enjoys unrivalled access to transport and key amenities. It's situated between La Trobe and RMIT Bundoora campuses, making it highly appealing to both students and young families. - Close to St Damian's Primary School, Yulong Park and Bundoora Bowls Club - Moments to Polaris Bundoora Square, Aldi and local cafes - Easy access to major arterial roads, buses and parklands Outstanding Redevelopment Potential Zoned Commercial 1, this property offers exceptional flexibility for future development (STCA), including potential alternative high-density or mixed-use options such as: - Professional offices (law, accounting, healthcare, government, design) - Education or childcare facilities - Mixed use Apartment building - Or simply convert the existing dwelling to a commercial use for an immediate low-cost investment return Additional Project Highlights - North-facing units designed as independent dwellings for reduced construction costs - Each bedroom includes its own ensuite, ideal for student or shared accommodation use Strategically positioned, cost-effective to build and supported by approved permit, this property represents one of Bundoora's most compelling development opportunities. *Existing house is leased on month to month basis*
Location
Address
1328 Plenty Road, Bundoora VIC 3083
City
Bundoora
Features and Finishes
None
Legal Notice
Our comprehensive database is populated by our meticulous research and analysis of public data. MirrorRealEstate strives for accuracy and we make every effort to verify the information. However, MirrorRealEstate is not liable for the use or misuse of the site's information. The information displayed on MirrorRealEstate.com is for reference only.