135/11 Woolamai Rise, Portarlington VIC 3223
Property Details
Vacant Land
Description
Property Details: • Type: Vacant Land
• Bedrooms: 0 • Bathrooms: 0
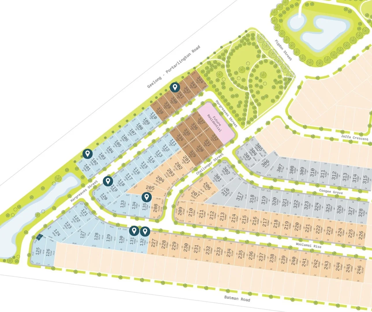
Description: Your dream coastal lifestyle is closer than ever at Panorama Portarlington. For a limited time, a select release of just six titled lots is now available from only $385,000 a rare opportunity to secure ready-to-build land at unbeatable value, with savings of up to $95,000. Set in a natural amphitheatre rising gently above the coast, Panorama Portarlington is a masterplanned community just 2km from the heart of Portarlington. Here, elevated home sites offer sweeping views across Port Phillip Bay to the You Yangs and Melbourne skyline, delivering a truly spectacular backdrop to your new coastal lifestyle. Whether you're seeking a permanent sea change, a relaxed weekend escape or a savvy investment, this exclusive land release presents an unmissable opportunity to build sooner and live better. Enjoy the best of the Bellarine from your doorstep morning beach walks, days on the water, and weekends exploring nearby seaside towns or sampling local produce and wines at world-class wineries. The thriving township of Portarlington offers boutique shopping, celebrated dining, a vibrant café culture, excellent schools, sporting reserves and direct ferry access to Docklands all just moments from your future front door. This is more than land. This is lifestyle, elevated. Don't miss your chance to Live the Panorama Life contact us today to secure your piece of the coast. Lot 135, 11 Woolamai Rise is a 420m2 (approx.) allotment offering a 14m frontage and 30m depth. For sale, for a limited time, at a discounted price of $462,000 this allotment provides the ideal setting to build your dream coastal getaway. For more information visit www.panoramaportarlington.com.au or contact Luke Campbell on 0409 554 949.
Location
Address
135/11 Woolamai Rise, Portarlington VIC 3223
City
Portarlington
Features and Finishes
None
Legal Notice
Our comprehensive database is populated by our meticulous research and analysis of public data. MirrorRealEstate strives for accuracy and we make every effort to verify the information. However, MirrorRealEstate is not liable for the use or misuse of the site's information. The information displayed on MirrorRealEstate.com is for reference only.