137 Bickley Rd, Beckenham WA 6107
Property Details
Vacant Land
Description
Property Details: • Type: Vacant Land
• Bedrooms: 0 • Bathrooms: 0
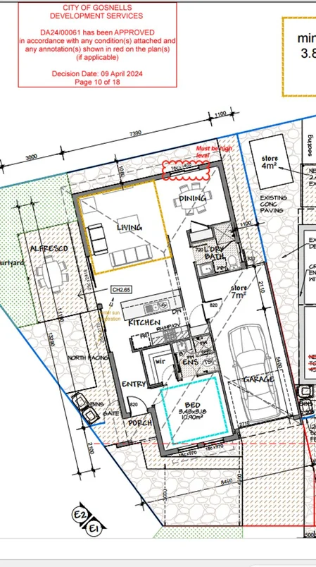
Description: RentBetter Property ID: 417743 (quote when calling) This property is currently under offer! Whether you're a first home buyer, investor, downsizer or builder, this exceptional value streetfront lot is an opportunity you don't want to miss. Positioned on a quiet street and within walking distance to Beckenham Train Station, this site offers convenience, affordability, and a head start with planning already in place. Key Features: Titles expected April 2026 Lot 1, 213m2, Zoned R30 subject to City of Gosnells Local Planning Policies LPP 3.5 and LPP 4.8 Planning restriction: Only a "small dwelling" may be constructed on this lot. See attached approved floor plan. Further details and options available on enquiry City of Gosnells approved house plans available (buyers may use these or design their own). Level, compacted land, ready to build. Approximate Distances: 600 m Beckenham Train Station 1.5 km IGA Beckenham 2.4 km Gibbs Street Primary School 2.5 km Westfield Carousel 2.6 km Beckenham Early Learning Centre 3.5 km St Norbert College 7 km Curtin University 13 km Perth CBD 14 km Perth Airport
Location
Address
137 Bickley Rd, Beckenham WA 6107
City
Beckenham
Features and Finishes
None
Legal Notice
Our comprehensive database is populated by our meticulous research and analysis of public data. MirrorRealEstate strives for accuracy and we make every effort to verify the information. However, MirrorRealEstate is not liable for the use or misuse of the site's information. The information displayed on MirrorRealEstate.com is for reference only.