14 Sunningdale Avenue, Rochedale South QLD 4123
Property Details
3
2
House
Description
Property Details: • Type: House
• Bedrooms: 3 • Bathrooms: 2
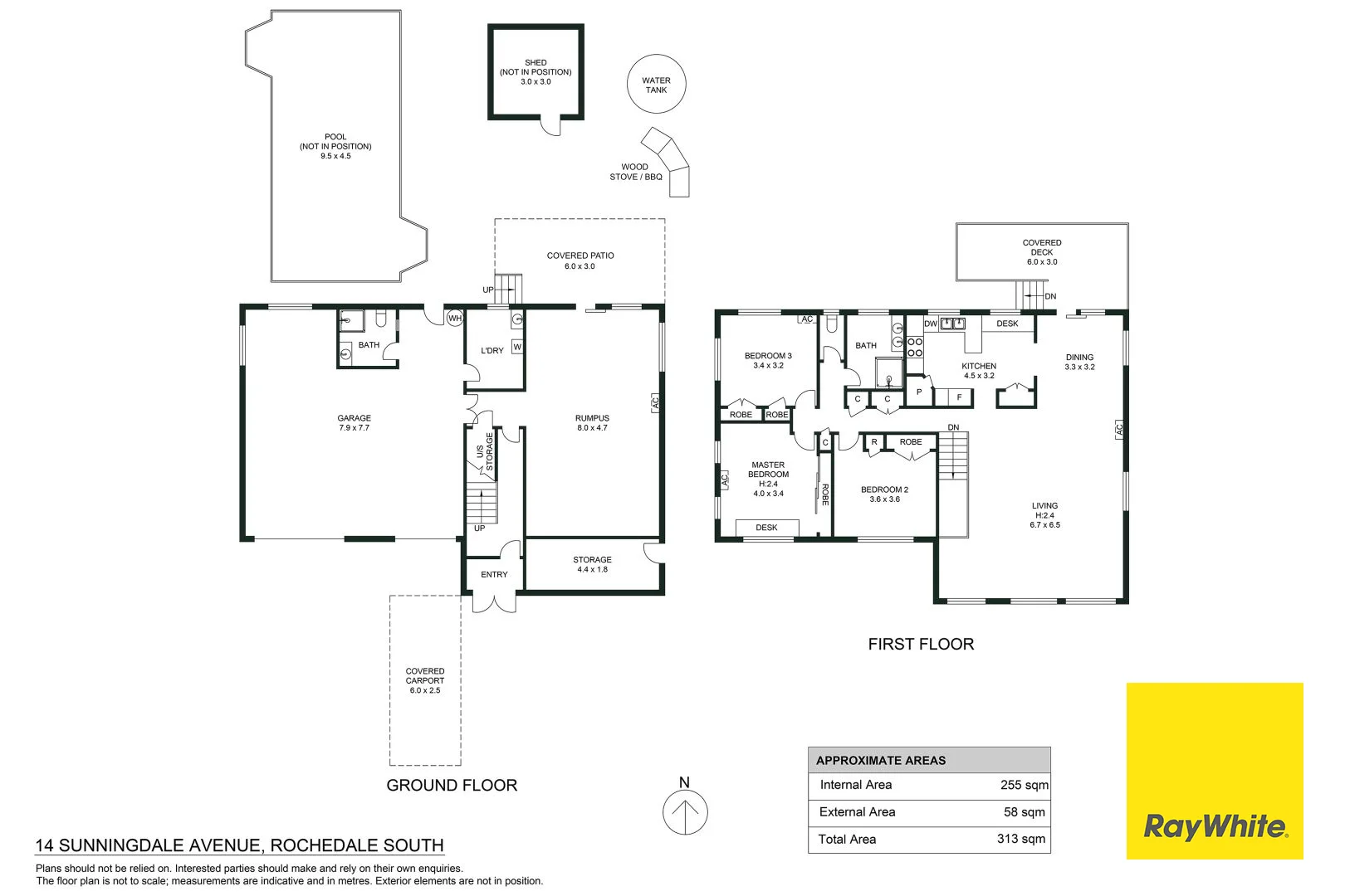
Description: Perfect for families seeking space and lifestyle, this solid high-set brick home offers multiple living areas, generous bedrooms, and a resort-style backyard designed for entertaining. Upstairs features: *3 bedrooms with built-in robes (master with air-conditioning, built-in desk & storage) *Family bathroom *Light-filled open-plan living & dining area *Spacious kitchen with plenty cupboards *Covered rear deck, ideal for outdoor dining Downstairs features: *Large rumpus room - perfect as a second living area, home office, or guest suite *Second full bathroom- with wheel chair facilities *Laundry & additional storage *Double garage + single carport (parking for 3 vehicles) Outdoor highlights: *Large saltwater pool *Covered patio, fire pit, and BBQ area for year-round entertaining *Expansive backyard - perfect for kids and pets *Water tank & garden shed for added convenience Location: Walking distance to local schools, parks & shopping centres Easy access to buses, trains, and the M1 for quick connections to Brisbane CBD & the Gold Coast Family-friendly neighbourhood with everything close by PLEASE NOTE, Please submit an enquiry to register for a viewing time online. If you do not register online, we cannot notify you of any time changes or cancellations to inspections. Prior to applying for this property please ensure you have conducted your own enquiries, with your preferred supplier, regarding the availability of NBN or any other service you may require. Disclaimer: We have in preparing this advertisement used our best endeavours to ensure the information contained is true and accurate, but accept no responsibility and disclaim all liability in respect to any errors, omissions, inaccuracies or misstatements contained. Prospective renters should make their own enquiries to verify the information contained in this advertisement.
Location
Address
14 Sunningdale Avenue, Rochedale South QLD 4123
City
Rochedale South
Features and Finishes
None
Legal Notice
Our comprehensive database is populated by our meticulous research and analysis of public data. MirrorRealEstate strives for accuracy and we make every effort to verify the information. However, MirrorRealEstate is not liable for the use or misuse of the site's information. The information displayed on MirrorRealEstate.com is for reference only.