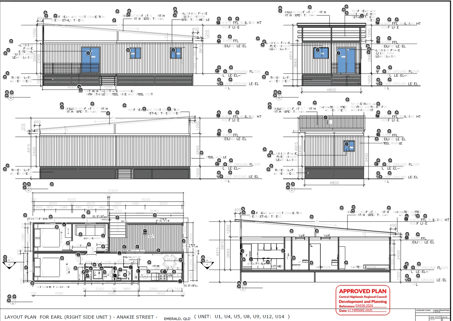
14 TOWNHOUSES APPROV/97 Anakie Street, Emerald QLD 4720
Property Details
2
1
Block of Units
Description
Property Details: • Type: Block of Units
• Bedrooms: 2 • Bathrooms: 1
Description: VENDOR RETIRES SAYS SELL EXSISTING DWELLINGS -DUPLEX ,HIGHSET HOUSE-LAND SIZE 2413 SQM RENOVATERS DREAM! Seize this exceptional opportunity to acquire a 2413 sqm parcel of land in the heart of Emerald, approved for 14 x 2-bedroom units, with the Material Change of Use already granted by the council. Key Features: -Approved for 14 x 2-bedroom units: Plans are ready to go for a high-demand residential development. -Material Change of Use: The land is zoned for multi-unit residential development, offering flexibility and ease of transition. -Holding Income $700 Per Week: Enjoy the benefit of holding income . -House if rented $350 per week -Size: A generous 2413 sqm lot, offering ample space for development or future expansion. -These approved Units (which can be modified as required ) are of a high quality consisting of 2 bedrooms, bathroom, separate toilet, living room and outdoor covered patio/deck. -The units are designed for ideal living for professional people such as doctors, nurses, other hospital staff, teachers, teachers aids including other education staff, local business managers, mine managers, contractors supervisors etc. -These units are ideal for married couples, shared accommodation or single use. Number of bedrooms, configuration etc are all open to change. -Changes in plans can be accommodated and COMPLETION READY FOR RENTAL CAN BE ACHIEVED WITHIN 5 MONTHS. -The property is within walking distance of the Emerald Hospital, Mcdonalds Cinemas, Emerald Tavern and several centrally located schools and pre-school facilities. -Rates:$3548.50 half yearly This site offers a fantastic opportunity for developers, investors, or builders looking to capitalize on the booming Emerald market. With council approval in place, this prime location ensures a smooth development process and strong returns. Don't miss out on this incredible investment opportunity in Emerald. Contact us today for more details!
Location
Address
14 TOWNHOUSES APPROV/97 Anakie Street, Emerald QLD 4720
City
Emerald
Features and Finishes
None
Legal Notice
Our comprehensive database is populated by our meticulous research and analysis of public data. MirrorRealEstate strives for accuracy and we make every effort to verify the information. However, MirrorRealEstate is not liable for the use or misuse of the site's information. The information displayed on MirrorRealEstate.com is for reference only.