15 High Street, East Launceston TAS 7250
Property Details
4
2
House
Description
Property Details: • Type: House
• Bedrooms: 4 • Bathrooms: 2
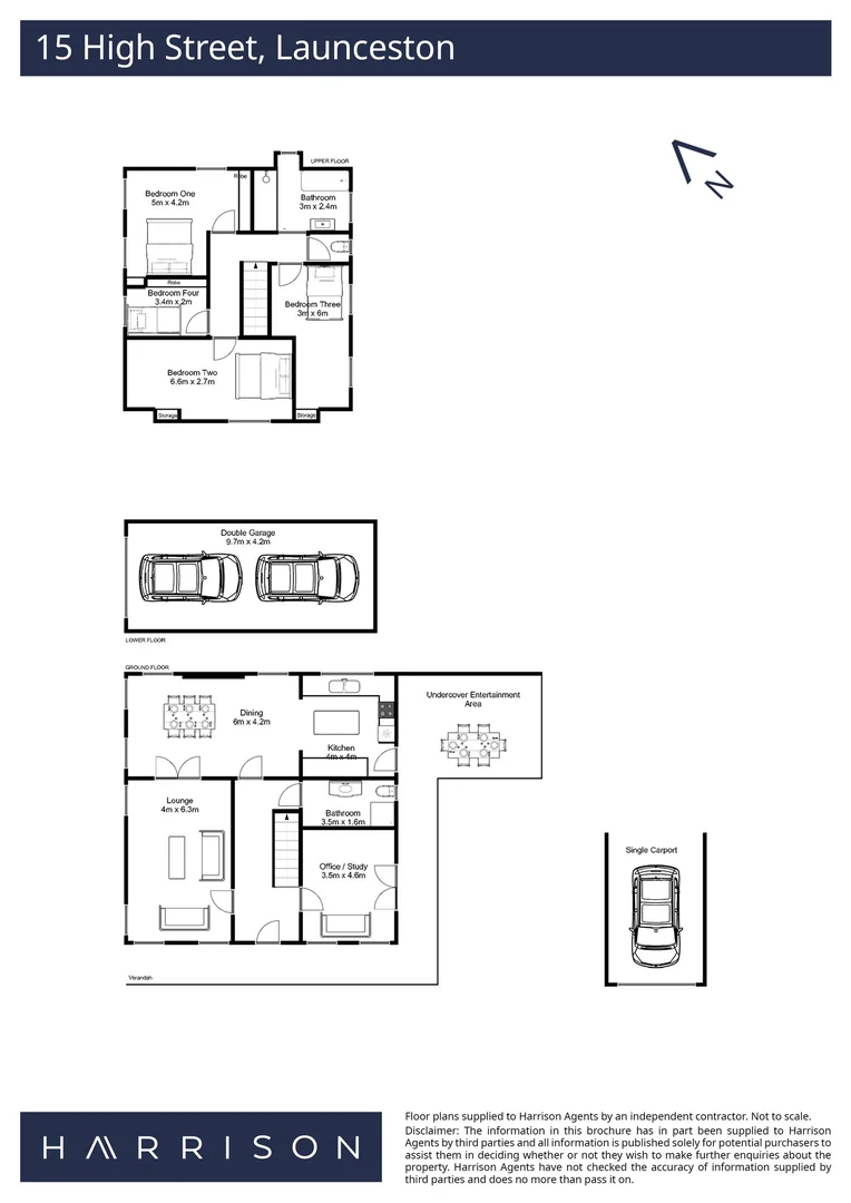
Description: Perfectly positioned in one of East Launceston's most sought-after streets, this charming home at 15 High Street offers an exceptional blend of character, comfort, and convenience. Showcasing light-filled interiors and generous living spaces, the home features three large bedrooms plus an additional bedroom or study, all complete with built-in storage. A second living area provides added versatility, ideal for families or those working from home. With a well-appointed kitchen and a private outdoor area perfect for relaxing or entertaining, this inviting home delivers both functionality and lifestyle. All of this is just moments from local cafés, parks, quality schools, and the Launceston CBD, making it a fantastic opportunity in a highly desirable location. TERMS OF TENANCY: Rent: $800 per week Available: 20th of April 2026 Lease Length: 12 month lease preferred Pet Policy: At any stage before or throughout this tenancy, the tenant will be required to seek the owner's consent using the approved form to keep a pet at the premises. Inspection: Please register for inspections online Apply: Online *** HOW TO APPLY: Submit your application via the "APPLY" button here on *** PROPERTY FEATURES - Well-appointed, open-plan kitchen and dining area - Spacious and inviting main lounge room - Versatile second living or sitting area, ideal as a home office or additional living space - Three generously sized bedrooms plus a fourth bedroom or study, all with built-in robes - Two well-appointed bathrooms, including one featuring a luxurious spa bath, shower and toilet - Warmed by reverse cycle heating for year-round comfort - Double garage with additional workshop space and under-house storage - Low-maintenance gardens and lawn, complemented by a private courtyard ideal for outdoor enjoyment ABOUT THE AREA Located in the established and leafy suburb of East Launceston, 15 High Street enjoys a convenient position just 13 minutes walk from the Launceston CBD and directly opposite the Launceston Aquatic Centre. Known for its character-filled streets and welcoming community, the area offers easy access to popular cafés, parks and excellent schools. Residents also benefit from proximity to medical facilities, public transport and everyday amenities. Combining lifestyle, convenience and charm, East Launceston is an ideal place to call home.
Location
Address
15 High Street, East Launceston TAS 7250
City
East Launceston
Features and Finishes
None
Legal Notice
Our comprehensive database is populated by our meticulous research and analysis of public data. MirrorRealEstate strives for accuracy and we make every effort to verify the information. However, MirrorRealEstate is not liable for the use or misuse of the site's information. The information displayed on MirrorRealEstate.com is for reference only.